Ferienhaus mit Naturblick und Nähe zum Museum

Ferienhaus - 6 Personen - Gl Mælkevej - 6857 - Blavand

Charmantes Ferienhaus in Blåvand mit Naturblick, Terrasse und Nähe zum Tirpitz-Museum.

Beschreibung

Dieses hübsche Ferienhaus hat eine großartige Lage, wenn du davon träumst, in deinem kommenden Urlaub die schöne Natur um dich herum zu haben und einen lebendigen Ort leicht zu erreichen. Auf der einen Seite des Naturgrundes hinter den Kiefern breitet sich die offene Heidelandschaft in Richtung Ho und Nordsee aus - und gleichzeitig sind es nur fünf Minuten zu Fuß bis zum spannenden Tirpitz-Museum und nur eine kurze Fahrt bis ins Zentrum von Blåvand.

Willkommen in deinem Ferienhaus
Die gewundenen Kiefern auf dem Naturgrundstück bilden einen schönen Kontrast zu den hellen Farbtönen und klaren Linien, die das Haus im Inneren schmücken. Nicht nur der Blick ins Grüne, sondern auch das Sonnenlicht wird durch die großen Fenster hereingelassen - auch durch die Oberlichter, die an einem wolkenlosen Abend sogar den Sternenhimmel sichtbar machen. Die Aufteilung des Hauses ist für sechs Personen gut geeignet, denn es stehen drei gute Schlafzimmer und zwei schöne Bäder zur Verfügung. Vom Wohnzimmer aus hat man Zugang zu einem Schlafboden, den die Kinder schnell als ihren Lieblingsspielplatz identifizieren werden. Die Erwachsenen können unten im Wohnzimmer bleiben, um zum Beispiel einen Kaffee mit Blick auf den Kamin zu trinken oder in der gut ausgestatteten offenen Küche zu kochen. Die Küche verfügt u.a. über einen Quooker, wovon man kochendes Wasser giessen kann.

Genieße das Leben im Freien
Wenn die Temperaturen mild sind und die Sonne scheint, ist die Terrasse deines Ferienhauses ein großartiger Ort zum Verweilen. Wenn es zu heiß wird, um hier zu sitzen, kannst du den Sonnenschirm aufspannen, bevor du den Tisch für ein sommerliches Mittagessen oder für ein Grillfest deckst, bei dem du etwas Besonderes auf den Tellern und in den Gläsern haben möchtest. Auf dem Rasen neben dem Haus gibt es viel Platz zum Spielen, und die Kinder können zwischen den Bäumen Verstecken spielen und auf Entdeckungstour gehen.

Entdecke deine Umgebung
Vom Haus aus sind es nur ein paar Minuten zu Fuß zum Tirpitz-Museum, das nicht nur ein interessantes Museum ist, sondern auch ein spektakuläres Gebäude, das vom Architekturbüro BIG unter der Leitung von Bjarke Ingels entworfen wurde. Etwas weiter entfernt liegt der Zoo von Blåvand, und wenn Du in dieselbe Richtung weitergehst, erreichst du bald das gemütliche Stadtzentrum von Blåvand. Da das Haus direkt am Rande der Siedlung liegt, ist es auch sehr einfach, in die Natur zu gelangen. Du musst zum Beispiel nur den Tane Hedevej überqueren, um auf einem Pfad durch die Heidelandschaft hinunter nach Hvidbjerg Strand zu gelangen. Natürlich kannst du auch mit dem Auto oder dem Fahrrad an die Nordsee fahren, wenn du morgens noch schnell ein Bad nehmen möchtest, bevor der Tag richtig beginnt.


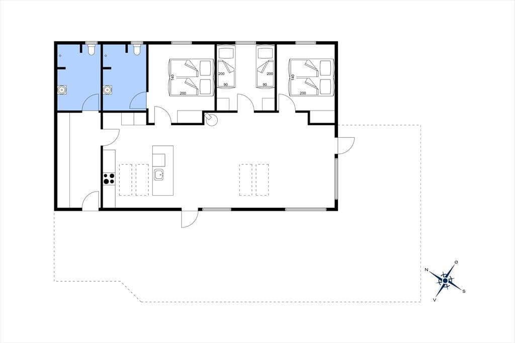
Raumaufteilung

  • Schlafzimmer
    • Doppelbett - 140 x 200cm
  • Schlafzimmer
    • Einzelbett - 90 x 200cm
    • Einzelbett - 90 x 200cm
  • Schlafzimmer
    • Doppelbett - 140 x 200cm
  • Badezimmer
  • Badezimmer
  • Küche
  • Wohnzimmer
  • Flur

Beliebteste Ausstattungen

  • Schlafzimmer 3
  • Badezimmer 2
  • Wohnfläche 105 m²
  • Grundstück 2.500 m²
  • Haustiere Nicht erlaubt
  • Kurzurlaub möglich Nein
  • Entfernung Wasser 1.800 m
  • Einkaufen 2.300 m
  • Internet Ja
  • Satelliten-/Kabel TV Ja
  • Kaminofen Ja
  • Waschmaschine Ja
  • Trockner Ja
  • Geschirrspüler Ja
  • Nichtraucher Ja
  • Ladestation für Elektroauto Ja
  • Klimafreundlich Ja

Gesamte Ausstattung

  • Hausinfo.

    • 2 x Dusche
    • 2 x WC
    • Anzahl Erw.
      6
    • Baujahr
      2014
    • Grundstück / Naturgrund
      2500 m²
    • Hausareal
      105 m²
  • Entfernungen

    • Entfernung Einkauf / Ganzjahresgeschäft
      2,3 km
    • Entfernung Restaurant
      2,8 km
    • Entfernung Strand / Sandstrand
      1,8 km
    • Entfernung zum Golfplatz
      4 km
  • Energie/Heizung

    • Kaminofen
    • Sonnenenergie
    • Wärmepumpe
  • Küchengeräte

    • 2 x Backofen
    • Abzugshaube
    • Bügelbrett
    • Bügeleisen
    • Kaffeemaschine
    • Kochplatten
    • Kühlschrank m/Gefrierfach
      Kühlschrankgröße in L: 277 • Gefrierschrankgröße in L: 60
    • Mikrowelle
    • Spülmaschine
    • Waschmaschine
    • Wäschetrockner
  • Multimedien

    • 3 x Fernseher
    • Deutsche Kanäle
    • Dän. TV
    • Gratis Wi-Fi - Über 20 Mbit
    • Kabel TV
  • Extra

    • Golf-Urlaub
  • Draußen

    • Gartenmöbel
    • Grill
      Kohlegrill
    • Liegestühle
      4
    • Parken auf dem Grundstück
    • Sonnenschirm
    • Terrasse
  • Diverse

    • 2 x Fußbodenheizung
  • Regeln

    • Aufladen des Elektroautos erlaubt / Ladegerät verfügbar (Typ 2 Stecker, Kabel mitbringen)
    • HAUSTIER NICHT ERLAUBT
    • Rauchen verboten
  • Preis inbegriffen

    • Endreinigung inkl.
  • ALT

    • Radio

Kurzurlaub

Prices and calendar

Kalender

Ankunft
Vorheriger Monat Nächster Monat
  • Juli 2026
    MoDiMiDoFrSaSo
    2712345
    286789101112
    2913141516171819
    3020212223242526
    312728293031
    32
  • August 2026
    MoDiMiDoFrSaSo
    3112
    323456789
    3310111213141516
    3417181920212223
    3524252627282930
    3631
   Verfügbarkeit am ausgewählten Datum prüfen
Frei
Nicht frei
   Ankunft möglich
Dauer

Preis

Zeitraum
Ankunft
Abreise
Dauer
1 Woche
Personen
Bis zu 6 Personen

Bitte beachten

Ankunftszeit wurde nicht ausgewählt.
Vertrags- und Mietbedingungen