Alternative Objekte
In der Nähe (397)
Modernes Reetdachhaus mit Sauna und Whirlpool
Ferienhaus - 9 Personen - Solhaven - 6857 - Blavand
-
Blavand
-
9 Personen
-
Wohnfläche210 m²
-
Objekt Nr.:121-26-0860
Modernisiertes Reetdach-Ferienhaus mit Sauna, Whirlpool und privatem Waldspielplatz in Blåvand.
Beschreibung
In der gemütlichen Ferienhaussiedlung ”Solhaven” in Blåvand liegt dieses Ferienhaus mit Reetdach und einem schönen privaten Waldspielplatz. Im Inneren bietet das Haus eine Vielzahl an Einrichtungen für die ganze Familie – ganz gleich, ob du gemütliche Stunden in den weichen Couchen verbringen oder Videospiele auf der Konsole spielen möchtest. Das Haus wurde modernisiert und verfügt über einen schönen Küchen-Wohnbereich, in dem sich alle versammeln können. Während das leckere Essen zubereitet wird, kann das Kochteam der Familie die Aktivitäten im restlichen Erdgeschoss problemlos verfolgen. Das Obergeschoss ist geschmackvoll eingerichtet, unter anderem mit Akustikpaneelen.
Bei diesem schönen Ferienhaus in Blåvand ist es von Vorteil, wenn du aktive Stunden an der frischen Luft schätzt. In dem kleinen Wald neben dem Haus findest du eine spannende und leicht herausfordernde Kletter- und Balancierstrecke, an dem Gäste jeden Alters ihre Freude haben können - die Nutzung erfolgt auf eigene Verantwortung. Wenn anschliesend eine Pause nötig ist, findest du eine farbenfrohe Hängematte, in die du dich entspannen kannst. Während einige die Kletter- und Balancierstrecke erkunden, können andere es sich auf der nach Süden ausgerichteten Terrasse des Hauses gemütlich machen. Es stehen Gartenmöbel und Liegestühle bereit – hier kannst du entspannte Stunden mit einem guten Buch oder vielleicht einem kühlen Glas Roséwein verbringen.
Einrichtung
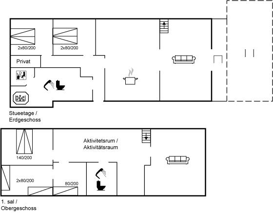
Das Ferienhaus eignet sich für 9 Personen. Die Ferienunterkunft hat eine Wohnfläche von 210 m², ist 2-stöckig, und wurde 1988 gebaut. 2020 wurde die Ferienunterkunft renoviert. Es ist erlaubt 2 Haustiere mitzubringen. In der Ferienunterkunft ist eine energiesparende Luft zu Luft Wärmepumpe installiert. Die Ferienunterkunft ist mit Waschmaschine ausgestattet. Wäschetrockner. Tiefkühlmöglichkeit mit 60 Liter Nutzinhalt. Es gibt außerdem einen Kaminofen. Für die jüngsten Feriengäste ist 1 Kinderhochstuhl vorhanden. Wickeltisch.
Draußen
Die Ferienunterkunft liegt auf einem 2500 m² großen Naturgrundstück. Die Entfernung zum Meer beträgt 1500 m. Die nächste Einkaufsmöglichkeit liegt 1200 m entfernt. Es steht ein offenes Terrassenareal zur Verfügung. Außerdem gibt es überdachte Terrasse. Sandkasten. Es steht ein Grill zur Verfügung. Es steht ein Carport zur Verfügung. Parkplatz auf dem Grundstück.
Hobbyraum
Dart. Airhockey.
Schlafverhältnisse
Die Schlafplätze verteilen sich auf 4 Schlafräume. 6 Schlafplätze in Doppelbetten. 3 Schlafplätze in Einzelbetten.
Küche
Die Küche ist mit Kühlschrank ausgestattet. Außerdem gibt es 4 Induktions-Kochzonen, Umluftofen, Mikrowelle sowie Geschirrspüler.
WC und Bad
Es gibt 2 Badezimmer mit Duschnische und 2 Toiletten. Fußbodenheizung in 1 Badezimmer. Es steht eine Sauna zur Verfügung in der Sie sich so richtig entspannen können.
Whirlpool
Entspannen Sie sich im Innen-Durchlauf-Whirlpool für 5 Personen.
Multimedien
In der Ferienwohnung gibt es 3 Smart-TVs.Playstation 3. Mindestens 4 dänische Fernsehsender. Mindestens 4 deutsche Fernsehsender. Es steht kabellose Internetverbindung zur Verfügung.
Wissenswertes
Keine Vermietung an Jugendgruppen, in denen alle 15-25 Jahre sind. Rauchen ist nicht zugelassen. Bei Nichtbeachtung dieses Verbots wird eine Gebühr von mindestens EUR 420,- erhoben.
Einrichtung
Das Ferienhaus eignet sich für 9 Personen. Die Ferienunterkunft hat eine Wohnfläche von 210 m², ist 2-stöckig, und wurde 1988 gebaut. 2020 wurde die Ferienunterkunft renoviert. Es ist erlaubt 2 Haustiere mitzubringen. In der Ferienunterkunft ist eine energiesparende Luft zu Luft Wärmepumpe installiert. Die Ferienunterkunft ist mit Waschmaschine ausgestattet. Wäschetrockner. Tiefkühlmöglichkeit mit 60 Liter Nutzinhalt. Es gibt außerdem einen Kaminofen. Für die jüngsten Feriengäste ist 1 Kinderhochstuhl vorhanden. Wickeltisch.
Draußen
Die Ferienunterkunft liegt auf einem 2500 m² großen Naturgrundstück. Die Entfernung zum Meer beträgt 1500 m. Die nächste Einkaufsmöglichkeit liegt 1200 m entfernt. Es steht ein offenes Terrassenareal zur Verfügung. Außerdem gibt es überdachte Terrasse. Sandkasten. Es steht ein Grill zur Verfügung. Es steht ein Carport zur Verfügung. Parkplatz auf dem Grundstück.
Hobbyraum
Dart. Airhockey.
Schlafverhältnisse
Die Schlafplätze verteilen sich auf 4 Schlafräume. 6 Schlafplätze in Doppelbetten. 3 Schlafplätze in Einzelbetten.
Küche
Die Küche ist mit Kühlschrank ausgestattet. Außerdem gibt es 4 Induktions-Kochzonen, Umluftofen, Mikrowelle sowie Geschirrspüler.
WC und Bad
Es gibt 2 Badezimmer mit Duschnische und 2 Toiletten. Fußbodenheizung in 1 Badezimmer. Es steht eine Sauna zur Verfügung in der Sie sich so richtig entspannen können.
Whirlpool
Entspannen Sie sich im Innen-Durchlauf-Whirlpool für 5 Personen.
Multimedien
In der Ferienwohnung gibt es 3 Smart-TVs.Playstation 3. Mindestens 4 dänische Fernsehsender. Mindestens 4 deutsche Fernsehsender. Es steht kabellose Internetverbindung zur Verfügung.
Wissenswertes
Keine Vermietung an Jugendgruppen, in denen alle 15-25 Jahre sind. Rauchen ist nicht zugelassen. Bei Nichtbeachtung dieses Verbots wird eine Gebühr von mindestens EUR 420,- erhoben.
Beliebteste Ausstattungen
- Schlafzimmer 4
- Badezimmer 2
- Wohnfläche 210 m²
- Grundstück 2.500 m²
- Haustiere 2
- Kurzurlaub möglich Ja
- Entfernung Wasser 1.500 m
- Einkaufen 1.200 m
- Whirlpool Ja
- Sauna Ja
- Internet Ja
- Satelliten-/Kabel TV Ja
- Kaminofen Ja
- Waschmaschine Ja
- Trockner Ja
- Geschirrspüler Ja
- Nichtraucher Ja
- Klimafreundlich Ja
Gesamte Ausstattung
-
Bitte beachten
-
Keine Arbeiter auf Anfrage
-
Keine Jugendgruppen auf Anfrage
-
Rauchen ist verboten
-
-
Draußen
-
Carport
-
Geschäft1,2 km
-
Grill1
-
Größe des Grundstücks2500 m²
-
Meer1,5 km
-
Naturstandort
-
Parkplatz beim Haus
-
Sandkasten
-
Terrasse
-
Überdachte Terrasse
-
-
Einrichtung
-
2 Ebenen
-
Anzahl Erwachsene inkl. 4-11 Jahre9
-
Baujahr1988
-
Bebaute Fläche210 m²
-
Ferienhaus
-
Gefrierkapazität (Anzahl Liter)60
-
Haustiere2
-
Hochstuhl1
-
Holzofen1
-
Renovierung2020
-
Waschmaschine1
-
Wickeltisch
-
Wärmepumpe
-
Wärmepumpe Luft zu Luft
-
Wäschetrockner1
-
-
Hobbyraum
-
Airhockey
-
Dart
-
-
Küche
-
Anzahl der Induktionskochplatten4
-
Heißluftofen1
-
Kühlschrank1
-
Mikrowelle1
-
Spülmaschine1
-
-
Multimedien
-
> 3 deutsche Sender
-
> 3 dänische Sender
-
Anzahl der Fernseher3
-
Internet drahtlos
-
Playstation 3
-
Smart TV3
-
-
Schlafverhältnisse
-
Anzahl der Schlafzimmer4
-
Doppelbett (Anzahl der Schlafplätze)6
-
Einzelbett (Anzahl der Schlafplätze)3
-
-
WC und Bad
-
Anzahl der Badezimmer2
-
Duschkabine
-
Fußbodenheizung1
-
Sauna
-
Toiletten2
-
-
Whirlpool
-
Innen-Whirlpool (Anzahl Personen)5
-
-
Zugang zur Ferienunterkunft
-
Schlüsselkasten mit Code
-
Kurzurlaub
Es besteht eine begrenzte Möglichkeit das ganze Jahr einen Kurzurlaub zu machen, typischerweise ausserhalb der Hochsaison.
Preis
Zeitraum
- Ankunft
- Abreise
- Dauer
- 1 Woche
Personen
Bis zu 9 Personen
Bitte beachten
Ankunftszeit wurde nicht ausgewählt.