Alternative Objekte
In der Nähe (466)
Modernes Ferienhaus mit Pool und Sauna in Blåvand
Ferienhaus - 10 Personen - Nordkrogen - 6857 - Blavand
-
Blavand
-
10 Personen
-
Wohnfläche180 m²
-
Objekt Nr.:121-26-3117
Modernes Ferienhaus in Blåvand mit Pool, Sauna, Whirlpool und viel Platz zum Entspannen.
Beschreibung
Soll der Urlaub etwas ganz besonderes sein, ist dieses Haus die richtige Wahl. Es bietet mit einer modernen und geschmackvollen Einrichtung den richtigen Rahmen für den perfekten Urlaub. In der schönen Poolabteilung mit Swimmingpool, Wasserrutsche, Sauna und großem Standwasser-Whirlpool können sich Jung und Alt gemeinsam Vergnügen. Übrigens: Es ist eine energiefreundliche Luft-Wasser-Wärmepumpe installiert, die das Wasser im Swimmingpool und im Whirlpool erwärmt. Im offenen Obergeschoss, mit Aussicht über die Heidelandschaft und die Poolabteilung, befinden sich 2 Schlafplätze.
Einrichtung
Das Ferienhaus eignet sich für 10 Personen. Die Ferienunterkunft hat eine Wohnfläche von 180 m² und wurde 1993 gebaut. 2007 wurde die Ferienunterkunft renoviert. 2013 wurde die Ferienunterkunft teilweise renoviert. Es ist erlaubt 2 Haustiere mitzubringen. Die Ferienunterkunft ist mit energiesparender Wärmepumpe ausgestattet. Die Ferienunterkunft ist mit Waschmaschine ausgestattet. Wäschetrockner. Tiefkühlmöglichkeit mit 60 Liter Nutzinhalt. Es gibt außerdem einen Kaminofen. Für die jüngsten Feriengäste ist 1 Kinderhochstuhl vorhanden.
Draußen
Die Ferienunterkunft liegt auf einem 1750 m² großen Naturgrundstück. Die Entfernung zum Meer beträgt 1800 m. Die nächste Einkaufsmöglichkeit liegt 800 m entfernt. Es steht ein 70 m² Terrassenareal zur Verfügung. Zutritt zu einem Atriumgarten. Geräteraum. Schaukel. Sandkasten.Wippe. Es ist ein Ladestecker für Elektroautos installiert.
Swimmingpool
Im Swimmingpool können sich Jung und Alt gemeinsam Vergnügen. Der Swimmingpool misst bis zu 3,2 m in der Breite, 6,2 m in der Länge und bis zu 1,3 m in der Tiefe. Die Wassertemperatur liegt zwischen 24 und 28° C.
Schlafverhältnisse
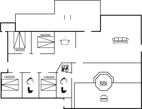
Die Schlafplätze verteilen sich auf 4 Schlafräume. 8 Schlafplätze in Doppelbetten. 2 Schlafplätze in Einzelbetten. 2 von diesen Schlafplätzen befinden sich im offenen Obergeschoss.
Küche
Die Küche ist mit Kühlschrank ausgestattet. Außerdem gibt es 4 Keramik-Kochfelder, Umluftofen, Mikrowelle sowie Geschirrspüler.
WC und Bad
Es gibt 2 Badezimmer mit Duschnische und 2 Toiletten. Fußbodenheizung in 2 Badezimmern. Es steht eine Sauna zur Verfügung in der Sie sich so richtig entspannen können.
Whirlpool
Entspannen Sie sich im Innen-Standwasser-Whirlpool für 4 Personen.
Multimedien
In der Ferienunterkunft gibt es einen Fernseher. DVD-Player. Mindestens 4 dänische Fernsehsender. 1-3 schwedische Fernsehsender. 1-3 norwegische Fernsehsender. Mindestens 4 deutsche Fernsehsender.Es steht kostenlose Internetverbindung via Kabel zur Verfügung. Es steht kabellose Internetverbindung zur Verfügung.
Wissenswertes
Keine Vermietung an Jugendgruppen, in denen alle 15-25 Jahre sind. Rauchen ist nicht zugelassen. Bei Nichtbeachtung dieses Verbots wird eine Gebühr von mindestens EUR 420,- erhoben.
Einrichtung
Das Ferienhaus eignet sich für 10 Personen. Die Ferienunterkunft hat eine Wohnfläche von 180 m² und wurde 1993 gebaut. 2007 wurde die Ferienunterkunft renoviert. 2013 wurde die Ferienunterkunft teilweise renoviert. Es ist erlaubt 2 Haustiere mitzubringen. Die Ferienunterkunft ist mit energiesparender Wärmepumpe ausgestattet. Die Ferienunterkunft ist mit Waschmaschine ausgestattet. Wäschetrockner. Tiefkühlmöglichkeit mit 60 Liter Nutzinhalt. Es gibt außerdem einen Kaminofen. Für die jüngsten Feriengäste ist 1 Kinderhochstuhl vorhanden.
Draußen
Die Ferienunterkunft liegt auf einem 1750 m² großen Naturgrundstück. Die Entfernung zum Meer beträgt 1800 m. Die nächste Einkaufsmöglichkeit liegt 800 m entfernt. Es steht ein 70 m² Terrassenareal zur Verfügung. Zutritt zu einem Atriumgarten. Geräteraum. Schaukel. Sandkasten.Wippe. Es ist ein Ladestecker für Elektroautos installiert.
Swimmingpool
Im Swimmingpool können sich Jung und Alt gemeinsam Vergnügen. Der Swimmingpool misst bis zu 3,2 m in der Breite, 6,2 m in der Länge und bis zu 1,3 m in der Tiefe. Die Wassertemperatur liegt zwischen 24 und 28° C.
Schlafverhältnisse
Die Schlafplätze verteilen sich auf 4 Schlafräume. 8 Schlafplätze in Doppelbetten. 2 Schlafplätze in Einzelbetten. 2 von diesen Schlafplätzen befinden sich im offenen Obergeschoss.
Küche
Die Küche ist mit Kühlschrank ausgestattet. Außerdem gibt es 4 Keramik-Kochfelder, Umluftofen, Mikrowelle sowie Geschirrspüler.
WC und Bad
Es gibt 2 Badezimmer mit Duschnische und 2 Toiletten. Fußbodenheizung in 2 Badezimmern. Es steht eine Sauna zur Verfügung in der Sie sich so richtig entspannen können.
Whirlpool
Entspannen Sie sich im Innen-Standwasser-Whirlpool für 4 Personen.
Multimedien
In der Ferienunterkunft gibt es einen Fernseher. DVD-Player. Mindestens 4 dänische Fernsehsender. 1-3 schwedische Fernsehsender. 1-3 norwegische Fernsehsender. Mindestens 4 deutsche Fernsehsender.Es steht kostenlose Internetverbindung via Kabel zur Verfügung. Es steht kabellose Internetverbindung zur Verfügung.
Wissenswertes
Keine Vermietung an Jugendgruppen, in denen alle 15-25 Jahre sind. Rauchen ist nicht zugelassen. Bei Nichtbeachtung dieses Verbots wird eine Gebühr von mindestens EUR 420,- erhoben.
Beliebteste Ausstattungen
- Schlafzimmer 4
- Badezimmer 2
- Wohnfläche 180 m²
- Grundstück 1.750 m²
- Haustiere 2
- Kurzurlaub möglich Nein
- Entfernung Wasser 1.800 m
- Einkaufen 800 m
- Swimmingpool innen Ja
- Whirlpool Ja
- Sauna Ja
- Internet Ja
- Satelliten-/Kabel TV Ja
- Kaminofen Ja
- Waschmaschine Ja
- Trockner Ja
- Geschirrspüler Ja
- Nichtraucher Ja
- Ladestation für Elektroauto Ja
- Klimafreundlich Ja
Gesamte Ausstattung
-
Bitte beachten
-
Keine Jugendgruppen auf Anfrage
-
Rauchen ist verboten
-
-
Draußen
-
Atrium
-
Geschäft800 m
-
Größe des Grundstücks1750 m²
-
Ladegerät für Elektroautos
-
Meer1,8 km
-
Naturstandort
-
Sandkasten
-
Schwingen
-
Terrasse70 m²
-
Werkzeugschuppen
-
Wippe
-
-
Einrichtung
-
Anzahl Erwachsene inkl. 4-11 Jahre10
-
Baujahr1993
-
Bebaute Fläche180 m²
-
Ferienhaus
-
Gefrierkapazität (Anzahl Liter)60
-
Haustiere2
-
Hochstuhl1
-
Holzofen1
-
Jahr der Renovierung2013
-
Renovierung2007
-
Waschmaschine1
-
Wärmepumpe
-
Wäschetrockner1
-
-
Küche
-
Anzahl der Keramikkochplatten4
-
Heißluftofen1
-
Kühlschrank1
-
Mikrowelle1
-
Spülmaschine1
-
-
Multimedien
-
> 3 deutsche Sender
-
> 3 dänische Sender
-
0-3 norwegische Kanäle
-
0-3 schwedische Kanäle
-
Anzahl der Fernseher1
-
DVD1
-
Herunterladen30
-
Hochladen30
-
Internet drahtlos
-
Internet über Kabel
-
-
Schlafverhältnisse
-
Anzahl der Schlafzimmer4
-
Doppelbett (Anzahl der Schlafplätze)8
-
Einzelbett (Anzahl der Schlafplätze)2
-
Schlafempore (Anzahl der Schlafplätze)
-
Schlafmöglichkeit nicht im Schlafzimmer
-
-
Swimmingpool
-
Hallenbad
-
Schwimmbadbreite3,2
-
Schwimmbadlänge6,2
-
Schwimmbadtiefe1,3
-
-
WC und Bad
-
Anzahl der Badezimmer2
-
Duschkabine
-
Fußbodenheizung2
-
Sauna
-
Toiletten2
-
-
Whirlpool
-
Vorgefüllter Innen-Whirlpool (Anzahl Personen)4
-
-
Zugang zur Ferienunterkunft
-
Türknauf mit Code
-
Preis
Zeitraum
- Ankunft
- Abreise
- Dauer
- 1 Woche
Personen
Bis zu 10 Personen
Bitte beachten
Ankunftszeit wurde nicht ausgewählt.