Ferienhaus - 6 Personen - Ringvejen - Bolilmark - 6792 - Römö
Alternative Objekte
In der Nähe (188)Übersicht
- Schlafzimmer 3
- Badezimmer 1
- Wohnfläche 92 m²
- Grundstück 2.600 m²
- Haustiere 2
- Kurzurlaub möglich Nein
- Entfernung Wasser 2.500 m
- Einkaufen 2.500 m
- Sauna Ja
- Internet Ja
- Satelliten-/Kabel TV Ja
- Kaminofen Ja
- Waschmaschine Ja
- Trockner Ja
- Geschirrspüler Ja
- Nichtraucher Ja
- Klimafreundlich Ja
Beschreibung
Ruhe und Frieden, schöne Umgebung, und im Inneren Brennofen und Sauna. Sehnst du dich danach, hinaus in die Natur zu kommen und das Tempo ganz herunterzuschalten, dann ist dieses Haus in Bolilmark die richtige Wahl.
Willkommen in deinem Ferienhaus
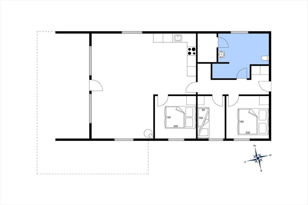
Dieses typische Ferienhaus wurde 1978 gebaut, und nach einer sorgfältigen Renovierung im Jahr 2015 präsentiert es sich nun schön und gepflegt. Unter anderem wurde die Küche modernisiert, sodass du dich auf einen guten Arbeitsplatz mit Ofen in Stehhöhe, Spülmaschine und anderen angenehmen Details freuen kannst. Die Küche ist in den Wohnraum integriert, der außerdem mit Brennofen, Wärmepumpe, Esstisch und einer weichen Sofagruppe ausgestattet ist, und von dem aus du eine schöne Aussicht über die umliegende Natur hast. Des Weiteren erwarten dich im Haus drei Schlafzimmer, ein Eingangsbereich mit Waschmaschine und Trockner sowie ein Badezimmer mit Sauna, in der du dich ganz nach Belieben entspannen kannst.
Genieße das Leben im Freien
Durch die Gartentür in der Stube hast du direkten Zugang zur tollen, großen Terrasse. Ein herrlicher Ort, um die Seele baumeln zu lassen, während du das schöne Wetter und die Aussicht über die Heidelandschaft und die Nadelbäume genießt – und nebenbei kannst du zwischen einem überdachten und einem offenen Aufenthaltsort wählen. An der Ostseite des Hauses erwartet dich eine weitere Terrasse, auf der du dich besonders morgens an der Sonne erfreuen kannst.
Entdecke deine Umgebung
Das Ferienhaus liegt zurückgezogen auf einem 2.600 m² großen Naturgrundstück, das an ein offenes Naturgebiet grenzt. Bolilmark ist von der schönsten Heidelandschaft umgeben, und besonders im Spätsommer ist es ein beeindruckender Anblick, wenn sich die offenen Weiten in ein Meer von lila Heideblüten verwandeln. Falls du Lust auf einen Spaziergang verspürst, liegt die Tvismark Baumplantage ganz in der Nähe des Ferienhauses, und wenn dir ein Bad in den Wellen der Nordsee verlockender erscheint, ist der Strand von Lakolk nur wenige Kilometer entfernt. Auf Rømø bietet es sich natürlich auch an, das Wattenmeer einmal näher anzuschauen, denn das faszinierende Gezeitengebiet ist auf der UNESCO Welterbenliste zu finden und gilt als einzigartiger Ort auf dem Globus. Auf Rømø gibt es eine gute Auswahl an Einkaufsmöglichkeiten und Restaurants, und besonders im Sommer gibt es Straßenstände, an denen du örtlich produzierten Honig und Gemüse der Saison erwerben kannst.
Unsere Gästebewertungen Externe Bewertungen
Ausstattung
-
Hausinfo.
-
Anzahl Erw.6
-
Anzahl Haustiere2
-
Baujahr1978
-
Dusche
-
Grundstück / Naturgrund2600 m²
-
Hausareal92 m²
-
Naturblick
-
Renovierungsjahr2015
-
Sauna
-
WC
-
-
Entfernungen
-
Entfernung Einkauf / Sommer2,5 km
-
Entfernung Restaurant5 km
-
Entfernung Strand / Sandstrand2,5 km
-
Entfernung Wattenmeer3 km
-
Entfernung zum Golfplatz12 km
-
-
Energie/Heizung
-
Elektroheizung
-
Kaminofen
-
Wärmepumpe / Ohne Kühlung
-
-
Küchengeräte
-
Abzugshaube
-
Backofen
-
Gefriertruhe47
-
Kaffeemaschine
-
Kochplatten
-
Kühlschrank118
-
Mikrowelle
-
Spülmaschine
-
Waschmaschine
-
Wasserkocher
-
Wäschetrockner
-
-
Multimedien
-
Deutsche Kanäle
-
Dän. TV
-
Gratis Wi-Fi - Über 20 Mbit
-
Parabol
-
TV
-
-
Extra
-
Für Wanderer
-
Hochstuhl
-
-
Draußen
-
Gartenmöbel
-
Grill
-
Liegestühle2
-
Parken auf dem Grundstück
-
Sandkiste
-
Schaukel
-
Sonnenschirm1
-
Terrasse
-
-
Diverse
-
Doppelbett 140 x 200
-
Doppelbett 180 x 200
-
Etagenbett 90 x 190
-
Fußbodenheizung
-
-
Regeln
-
Aufladung von Elektroautos nicht erlaubt
-
Haustiere: alle Arten erlaubt
-
Rauchen verboten
-
-
Preis inbegriffen
-
Endreinigung inkl.
-
Wasser inkl.
-
-
ALT
-
CD Gerät
-
DVD
-
Radio
-
Preise und Kalender
Kalender
Preis
- Ankunft
- Abreise
- Dauer
- 1 Woche
