Gemütliches Ferienhaus mit Sauna und Whirlpool
Ferienhaus - 6 Personen - Nyvej - Fanø, Rindby Strand - 6720 - Fanö
Alternative Objekte
In der Nähe (120)6 Personen
Übersicht
Objekt Nr.: 121-28-4151
7 Übernachtungen
Ab
EUR 562,-
Reinigung auf Wunsch: EUR 119,-
Gemütliches Ferienhaus nahe dem Strand auf Fanø mit Sauna, Whirlpool und großzügiger Terrasse für erholsame Urlaubstage.
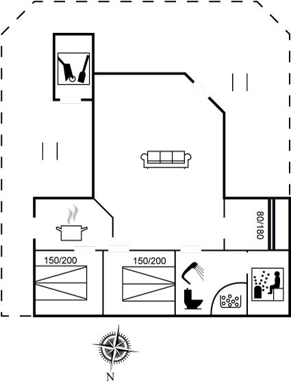
- Schlafzimmer 3
- Badezimmer 1
- Wohnfläche 70 m²
- Grundstück 1.414 m²
- Haustiere 2
- Kurzurlaub möglich Ja
- Entfernung Wasser 200 m
- Einkaufen 1.500 m
- Whirlpool Ja
- Sauna Ja
- Internet Ja
- Satelliten-/Kabel TV Ja
- Kaminofen Ja
- Waschmaschine Ja
- Geschirrspüler Ja
- Nichtraucher Ja
- Klimafreundlich Ja
Beschreibung
Auf einem ungestört gelegenen Naturgrundstück dicht am Strand liegt dieses schöne und geräumige Ferienhaus mit einer netten Einrichtung und modernen Bequemlichkeiten.
Einrichtung
Das Ferienhaus eignet sich für 6 Personen. Die Ferienunterkunft hat eine Wohnfläche von 70 m² und wurde 1994 gebaut. 2016 wurde die Ferienunterkunft teilweise renoviert. Es ist erlaubt 2 Haustiere mitzubringen. Die Ferienunterkunft ist mit energiesparender Wärmepumpe ausgestattet. Die Ferienunterkunft ist mit Waschmaschine ausgestattet. Tiefkühlmöglichkeit mit 10 Liter Nutzinhalt. Es gibt außerdem einen Kaminofen.
Draußen
Die Ferienunterkunft liegt auf einem 1414 m² großen Naturgrundstück. Die Entfernung zum Meer beträgt 200 m. Die nächste Einkaufsmöglichkeit liegt 1500 m entfernt. Es steht ein 50 m² geschlossenes Terrassenareal zur Verfügung. Davon sind 10 m² überdacht. Geräteraum. Parkplatz auf dem Grundstück.
Schlafverhältnisse
Die Schlafplätze verteilen sich auf 3 Schlafräume. 4 Schlafplätze in Doppelbetten. 2 Schlafplätze in einem Etagenbett.
Küche
Die Küche ist mit Kühlschrank ausgestattet. Außerdem gibt es 4 elektrische Kochplatten, Umluftofen, Mikrowelle sowie Geschirrspüler.
WC und Bad
Es gibt 1 Badezimmer mit Duschnische und 1 Toilette.. Fußbodenheizung in 1 Badezimmer. Es steht eine Sauna zur Verfügung in der Sie sich so richtig entspannen können.
Whirlpool
Entspannen Sie sich im Innen-Durchlauf-Whirlpool für 2 Personen.
Multimedien
In der Ferienunterkunft gibt es einen Fernseher. Radio. CD-Player. Mindestens 4 dänische Fernsehsender. Mindestens 4 deutsche Fernsehsender. Es steht kabellose Internetverbindung zur Verfügung.
Einrichtung
Das Ferienhaus eignet sich für 6 Personen. Die Ferienunterkunft hat eine Wohnfläche von 70 m² und wurde 1994 gebaut. 2016 wurde die Ferienunterkunft teilweise renoviert. Es ist erlaubt 2 Haustiere mitzubringen. Die Ferienunterkunft ist mit energiesparender Wärmepumpe ausgestattet. Die Ferienunterkunft ist mit Waschmaschine ausgestattet. Tiefkühlmöglichkeit mit 10 Liter Nutzinhalt. Es gibt außerdem einen Kaminofen.
Draußen
Die Ferienunterkunft liegt auf einem 1414 m² großen Naturgrundstück. Die Entfernung zum Meer beträgt 200 m. Die nächste Einkaufsmöglichkeit liegt 1500 m entfernt. Es steht ein 50 m² geschlossenes Terrassenareal zur Verfügung. Davon sind 10 m² überdacht. Geräteraum. Parkplatz auf dem Grundstück.
Schlafverhältnisse
Die Schlafplätze verteilen sich auf 3 Schlafräume. 4 Schlafplätze in Doppelbetten. 2 Schlafplätze in einem Etagenbett.
Küche
Die Küche ist mit Kühlschrank ausgestattet. Außerdem gibt es 4 elektrische Kochplatten, Umluftofen, Mikrowelle sowie Geschirrspüler.
WC und Bad
Es gibt 1 Badezimmer mit Duschnische und 1 Toilette.. Fußbodenheizung in 1 Badezimmer. Es steht eine Sauna zur Verfügung in der Sie sich so richtig entspannen können.
Whirlpool
Entspannen Sie sich im Innen-Durchlauf-Whirlpool für 2 Personen.
Multimedien
In der Ferienunterkunft gibt es einen Fernseher. Radio. CD-Player. Mindestens 4 dänische Fernsehsender. Mindestens 4 deutsche Fernsehsender. Es steht kabellose Internetverbindung zur Verfügung.
Unsere Gästebewertungen Externe Bewertungen
Ausstattung
-
Bitte beachten
-
Keine Jugendgruppen auf Anfrage
-
Rauchen ist verboten
-
-
Draußen
-
Geschlossene Terrasse50 m²
-
Geschäft1,5 km
-
Größe des Grundstücks1414 m²
-
Meer200 m
-
Naturstandort
-
Parkplatz beim Haus
-
Terrasse40 m²
-
Werkzeugschuppen
-
Überdachte Terrasse10 m²
-
-
Einrichtung
-
Anzahl Erwachsene inkl. 4-11 Jahre6
-
Baujahr1994
-
Bebaute Fläche70 m²
-
Ferienhaus
-
Gefrierkapazität (Anzahl Liter)10
-
Haustiere2
-
Holzofen1
-
Jahr der Renovierung2016
-
Waschmaschine1
-
Wärmepumpe
-
-
Küche
-
Anzahl elektrischer Kochplatten4
-
Heißluftofen1
-
Kühlschrank1
-
Mikrowelle1
-
Spülmaschine1
-
-
Multimedien
-
> 3 deutsche Sender
-
> 3 dänische Sender
-
Anzahl der Fernseher1
-
CD-Player
-
Internet drahtlos
-
Radio
-
-
Schlafverhältnisse
-
Anzahl der Schlafzimmer3
-
Doppelbett (Anzahl der Schlafplätze)4
-
Etagenbett (Anzahl der Schlafplätze)2
-
-
WC und Bad
-
Anzahl der Badezimmer1
-
Duschkabine
-
Fußbodenheizung1
-
Sauna
-
Toiletten1
-
-
Whirlpool
-
Innen-Whirlpool (Anzahl Personen)2
-
-
Zugang zur Ferienunterkunft
-
Schlüsselkasten mit Code
-
Kurzurlaub
Sie haben die nächsten 4 Wochen eine begrenzte Möglichkeit einen Kurzurlaub zu machen.
Preise und Kalender
Kalender
Dauer
Preis
Zeitraum
- Ankunft
- Abreise
- Dauer
- 1 Woche
Personen
Bis zu 6 Personen
Bitte beachten
Ankunftszeit wurde nicht ausgewählt.
