Ferienwohnung - 4 Personen - Flagbakkevej 26, lejl. - Gl. Skagen - 9990 - Skagen
Alternative Objekte
In der Nähe (109)4 Personen
Übersicht
Objekt Nr.: 121-10-1065
Kann derzeit nicht gebucht werden.
- Schlafzimmer 2
- Badezimmer 1
- Wohnfläche 79 m²
- Grundstück 130 m²
- Haustiere Nicht erlaubt
- Kurzurlaub möglich Nein
- Entfernung Wasser 800 m
- Einkaufen 1 km
- Internet Ja
- Waschmaschine Ja
- Geschirrspüler Ja
- Nichtraucher Ja
Beschreibung
Dieses schöne Ferienwohnung liegt auf einem Dünengrundstück in landschaftlich schöner Umgebung, die zu lange Spaziergänge und Radtouren einlädt. Die Wohnung liegt nicht weit vom idyllischen Gl. Skagen und dem Wasser entfernt. Es stehen eine große, eingezäunte und teilweise überdacht Terrasse zur Verfügung sowie ein Gemeinschaftsgelände mit Spielplatz, Fußballplatz und Petanquebahn.
Einrichtung
Diese Ferienwohnung eignet sich für 4 Personen. Die Ferienunterkunft hat eine Wohnfläche von 79 m² und wurde 2007 gebaut. Haustiere dürfen nicht mitgebracht werden. Die Ferienunterkunft ist mit Waschmaschine ausgestattet. Tiefkühlmöglichkeit mit 10 Liter Nutzinhalt.
Draußen
Die Ferienunterkunft liegt auf einem 130 m² großen Dünengrundstück. Die Entfernung zum Meer beträgt 800 m. Die nächste Einkaufsmöglichkeit liegt 1000 m entfernt. Außerdem gibt es 50 m² überdachte Terrasse. Parkplatz auf dem Grundstück.
Schlafverhältnisse
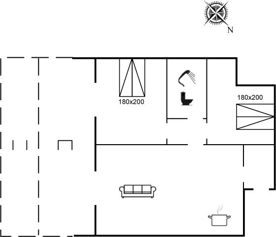
Die Schlafplätze verteilen sich auf 2 Schlafräume. 4 Schlafplätze in Doppelbetten.
Küche
Die Küche ist mit Kühlschrank ausgestattet. Außerdem gibt es 4 Keramik-Kochfelder, Umluftofen sowie Geschirrspüler.
WC und Bad
Es gibt 1 Badezimmer mit Duschnische und 1 Toilette.. Fußbodenheizung in 1 Badezimmer.
Multimedien
In der Ferienunterkunft gibt es einen Fernseher. 1 Smart-TV. 1-3 dänische Fernsehsender. 1-3 schwedische Fernsehsender. 1-3 norwegische Fernsehsender. 1-3 deutsche Fernsehsender. 1-3 englische Fernsehsender. Es steht kabellose Internetverbindung zur Verfügung.
Wissenswertes
Keine Vermietung an Jugendgruppen, in denen alle 15-25 Jahre sind. Rauchen ist nicht zugelassen. Bei Nichtbeachtung dieses Verbots wird eine Gebühr von mindestens EUR 420,- erhoben.
Einrichtung
Diese Ferienwohnung eignet sich für 4 Personen. Die Ferienunterkunft hat eine Wohnfläche von 79 m² und wurde 2007 gebaut. Haustiere dürfen nicht mitgebracht werden. Die Ferienunterkunft ist mit Waschmaschine ausgestattet. Tiefkühlmöglichkeit mit 10 Liter Nutzinhalt.
Draußen
Die Ferienunterkunft liegt auf einem 130 m² großen Dünengrundstück. Die Entfernung zum Meer beträgt 800 m. Die nächste Einkaufsmöglichkeit liegt 1000 m entfernt. Außerdem gibt es 50 m² überdachte Terrasse. Parkplatz auf dem Grundstück.
Schlafverhältnisse
Die Schlafplätze verteilen sich auf 2 Schlafräume. 4 Schlafplätze in Doppelbetten.
Küche
Die Küche ist mit Kühlschrank ausgestattet. Außerdem gibt es 4 Keramik-Kochfelder, Umluftofen sowie Geschirrspüler.
WC und Bad
Es gibt 1 Badezimmer mit Duschnische und 1 Toilette.. Fußbodenheizung in 1 Badezimmer.
Multimedien
In der Ferienunterkunft gibt es einen Fernseher. 1 Smart-TV. 1-3 dänische Fernsehsender. 1-3 schwedische Fernsehsender. 1-3 norwegische Fernsehsender. 1-3 deutsche Fernsehsender. 1-3 englische Fernsehsender. Es steht kabellose Internetverbindung zur Verfügung.
Wissenswertes
Keine Vermietung an Jugendgruppen, in denen alle 15-25 Jahre sind. Rauchen ist nicht zugelassen. Bei Nichtbeachtung dieses Verbots wird eine Gebühr von mindestens EUR 420,- erhoben.
Unsere Gästebewertungen Externe Bewertungen
Ausstattung
-
Bitte beachten
-
Keine Jugendgruppen auf Anfrage
-
Rauchen ist verboten
-
-
Draußen
-
Dünenstandort
-
Geschäft1 km
-
Größe des Grundstücks130 m²
-
Meer800 m
-
Parkplatz beim Haus
-
Überdachte Terrasse50 m²
-
-
Einrichtung
-
Anzahl Erwachsene inkl. 4-11 Jahre4
-
Baujahr2007
-
Bebaute Fläche79 m²
-
Ferienwohnung
-
Gefrierkapazität (Anzahl Liter)10
-
Waschmaschine1
-
-
Küche
-
Anzahl der Keramikkochplatten4
-
Heißluftofen1
-
Kühlschrank1
-
Spülmaschine1
-
-
Multimedien
-
0-3 deutsche Sender
-
0-3 dänische Kanäle
-
0-3 englische Kanäle
-
0-3 norwegische Kanäle
-
0-3 schwedische Kanäle
-
Anzahl der Fernseher1
-
Internet drahtlos
-
Smart TV1
-
-
Schlafverhältnisse
-
Anzahl der Schlafzimmer2
-
Doppelbett (Anzahl der Schlafplätze)4
-
-
WC und Bad
-
Anzahl der Badezimmer1
-
Duschkabine
-
Fußbodenheizung1
-
Toiletten1
-
-
Zugang zur Ferienunterkunft
-
Schlüsselkasten mit Code
-
Preise und Kalender
Kalender
Ankunft
-
Dezember 2025
Mo Di Mi Do Fr Sa So 49 1 2 3 4 5 6 7 50 8 9 10 11 12 13 14 51 15 16 17 18 19 20 21 52 22 23 24 25 26 27 28 1 29 30 31 2 -
Januar 2026
Mo Di Mi Do Fr Sa So 1 1 2 3 4 2 5 6 7 8 9 10 11 3 12 13 14 15 16 17 18 4 19 20 21 22 23 24 25 5 26 27 28 29 30 31 6
Verfügbarkeit am ausgewählten Datum prüfen
Frei
Nicht frei
Ankunft möglich
Dauer
Preis
Zeitraum
- Ankunft
- Abreise
- Dauer
Personen
Bis zu 4 Personen
Bitte beachten
Kann derzeit nicht gebucht werden.
