Komfortables Hausboot mit Hafenpanorama

Wohnboot - 6 Personen - Æ Gammel Havn - 6960 - Hvide Sande

Erleben Sie einzigartigen Hafenblick und Komfort auf diesem stilvollen Hausboot in Hvide Sande.

Beschreibung

Morgens Aufwachen zum Geräusch der Wellen, die das Hausboot umspülen, ist ein ganz besonderes Erlebnis. Nirgendwo sonst spürt man die Hafenstimmung so unmittelbar wie hier.

Einrichtung
Im Erdgeschoss gelangt man direkt in die Küche, die einen Essbereich und eine Spülmaschine enthält. Weiter vorne im Boot befindet sich ein großes Badezimmer mit direktem Zugang zur Sauna. Außerdem gibt es ein Badezimmer mit Whirlpool. Beide Bäder haben Fußbodenheizung. Das Hauptschlafzimmer hat Zugang zu einer privaten Terrasse mit Blick auf den Hafen.

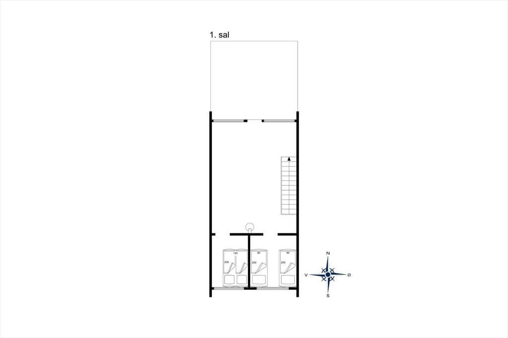
In der ersten Etage befindet sich das große Wohnzimmer des Hausbootes mit u. a. einem Flachbildfernseher, einem Kaminofen und einem fantastischen Panoramablick auf den Hafen und den Ringkøbing Fjord. Zudem haben Sie Zugang zur Hauptterrasse des Hausbootes, wo Gartenmöbel und ein Grill zur Verfügung stehen. Im ersten Stock befinden sich zwei weitere Schlafzimmer, eines mit zwei Einzelbetten und eines mit einem 3/4-Bett (120 x 200 cm) Das Hausboot bietet Platz für insgesamt sechs Personen.

Auf dem Hausboot sind das Internet sowie die Endreinigung im Preis inbegriffen.

Lage
Das Hausboot liegt im "Tyskerhavn", dem sogenannten Deutschen Hafen, auf der Fjordseite in Hvide Sande. Hier sind Sie von den traditionellen Geräteschuppen umgeben, in denen die Fischer ihre Fanggeräte aufbewahren. Überall spürt man die authentische Hafenatmosphäre. Hier auf der Fjordseite ist das Wasser ruhig und es sind nur wenige Gehminuten zum Zentrum von Hvide Sande, zu Einkaufsmöglichkeiten, Restaurants, Cafés und zum Meer.


Raumaufteilung

  • Schlafzimmer
    • Einzelbett - 80 x 200 cm
    • Einzelbett - 80 x 200 cm
  • Schlafzimmer
    • Doppelbett - 120 x 200 cm
  • Schlafzimmer
    • Doppelbett - 180 x 200 c,m

Beliebteste Ausstattungen

  • Schlafzimmer 3
  • Badezimmer 2
  • Wohnfläche 105 m²
  • Haustiere Nicht erlaubt
  • Kurzurlaub möglich Ja
  • Entfernung Wasser 1.400 m
  • Einkaufen 1 km
  • Whirlpool Ja
  • Sauna Ja
  • Internet Ja
  • Satelliten-/Kabel TV Ja
  • Kaminofen Ja
  • Wasserblick Ja
  • Waschmaschine Ja
  • Trockner Ja
  • Geschirrspüler Ja
  • Nichtraucher Ja

Gesamte Ausstattung

  • Hausinfo.

    • 2 x Dusche
    • 2 x WC
    • Anzahl Erw.
      6
    • Anzahl Etagen
      2
    • Baujahr
      2004
    • Fördeblick
    • Grundstücksgröße
    • Hausareal
      105 m²
    • Panorama
    • Sauna
    • Whirlpool, drinnen
  • Entfernungen

    • Entfernung Einkauf / Ganzjahresgeschäft
      1 km
    • Entfernung Restaurant
      600 m
    • Entfernung Schwimmhalle
      400 m
    • Entfernung Strand / Sand-, Kieselstrand
      1,4 km
    • Entfernung zum Golfplatz
      14 km
  • Energie/Heizung

    • Fernheizung
    • Kaminofen
  • Küchengeräte

    • Abzugshaube
    • Herd
    • Kaffeemaschine
    • Kühlschrank m/Gefrierfach
      40120L / 80L
    • Mikrowelle
      15
    • Spülmaschine
    • Waschmaschine
    • Wasserkocher
    • Wäschetrockner
  • Multimedien

    • Chromecast
      Eingebauter Fernseher
    • Deutsche Kanäle
    • Dän. TV
      DR-Kanäle
    • Kostenloses WLAN - mehr als 100 Mbit
    • Parabol
    • TV
  • Draußen

    • Gartenmöbel
    • Gemeinsamer Parkplatz
    • Grill
    • Liegestühle
      3
    • Offene Terrasse
      65 m²
  • Diverse

    • 2 x Fliesenboden
    • 2 x Fußbodenheizung
    • 5 x Holz-/Parkettboden
  • Regeln

    • Aufladung von Elektroautos nicht erlaubt
    • HAUSTIER NICHT ERLAUBT
    • Rauchen verboten
  • Preis inbegriffen

    • Endreinigung inkl.
    • Freier Zugang zum Wasserpark / Schwimmbad / Schwimmbad Hvide Sande
  • ALT

    • CD Gerät
    • DVD
    • Energiesparhaus

Kurzurlaub

Zur Zeit werden keine Kurzulaube angeboten. Das bedeutet meistens, dass ein Kurzurlaub in der Hochsaison nicht möglich ist.

Prices and calendar

Kalender

Ankunft
Vorheriger Monat Nächster Monat
  • August 2026
    MoDiMiDoFrSaSo
    3112
    323456789
    3310111213141516
    3417181920212223
    3524252627282930
    3631
  • September 2026
    MoDiMiDoFrSaSo
    36123456
    3778910111213
    3814151617181920
    3921222324252627
    40282930
    41
   Verfügbarkeit am ausgewählten Datum prüfen
Frei
Nicht frei
   Ankunft möglich
Dauer

Preis

Zeitraum
Ankunft
Abreise
Dauer
1 Woche
Personen
Bis zu 6 Personen

Bitte beachten

Ankunftszeit wurde nicht ausgewählt.
Vertrags- und Mietbedingungen