Ferienhaus - 6 Personen - Brune Bakke - Kikhavn - 3390 - Hundested
Alternative Objekte
In der Nähe (12)Übersicht
- Schlafzimmer 2
- Badezimmer 2
- Wohnfläche 59 m²
- Grundstück 2.210 m²
- Haustiere 1
- Kurzurlaub möglich Nein
- Entfernung Wasser 400 m
- Einkaufen 3.600 m
- Internet Ja
- Kaminofen Ja
- Waschmaschine Ja
- Geschirrspüler Ja
- Nichtraucher Ja
- Klimafreundlich Ja
Beschreibung
In der Brune Bakke 1 in Kikhavn erwartet dich ein Ferienhaus, das moderne Annehmlichkeiten mit einer charmanten Lage in einer ruhigen und idyllischen Ferienhausgegend verbindet. Hier findest du alles, was du für einen entspannten Urlaub inmitten der Natur brauchst.
Willkommen in deinem Ferienhaus
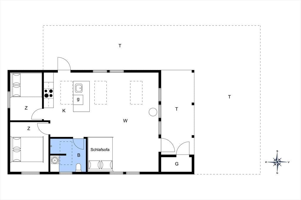
Das Ferienhaus bietet ein helles und offenes Wohn- und Küchenbereich, das eine einladende Atmosphäre schafft. Der Essbereich lädt zu gemütlichen Stunden ein, während die offene Küche es einfach macht, zusammen zu sein, egal ob gekocht oder geredet wird. Die gemütliche Fernsehecke lädt zum Entspannen mit einem guten Film oder Buch ein, nachdem du den Tag mit Erlebnissen gefüllt hast. Große Fenster und die Terrassentür verbinden Innen- und Außenbereich auf schönste Weise und lassen viel Licht in den Raum. Im separaten Gästehaus findest du ein zusätzliches Schlafzimmer sowie ein neues, modernes Badezimmer, das zusätzlichen Komfort bietet.
Genieße das Leben im Freien
Im Außenbereich erwartet dich eine große, erhöhte Holzterrasse, auf der du die langen Sommertage und milden Abende genießen kannst. Ein Teil der Terrasse ist überdacht, sodass du vor der Sonne oder dem Abendtau geschützt bist, während du dein Abendessen oder ein Glas Wein genießt. Der Garten ist von Bäumen und Büschen umgeben und bietet eine Rasenfläche, die perfekt für Ballspiele oder das Spielen mit dem Hund geeignet ist. Hier ist genug Platz für Entspannung und Aktivitäten an der frischen Luft, während die Ruhe der umliegenden Ferienhaussiedlung die perfekte Kulisse für totale Erholung schafft.
Entdecke deine Umgebung
Kikhavn ist eine einzigartige Gegend mit schönen alten Häusern und idyllischen Straßen, die von Pfingstrosen gesäumt sind. Ein kurzer Spaziergang vom Ferienhaus bringt dich zum Strand, wo du ein erfrischendes Bad im klaren Wasser nehmen kannst. In der Gegend gibt es auch einen gemütlichen Hofladen, der Delikatessen verkauft, und etwas weiter entfernt einen Erlebnishof, wo Kinder Kaninchen, Schweine und Pferde treffen können – und vielleicht ein leckeres Eis aus Ziegenmilch probieren. Wenn du eine längere Wanderung unternehmen möchtest, kannst du dem Pfad nach Hundested entlang der Küste folgen, vorbei am Knud Rasmussen Haus und dem Spodsbjerg Leuchtturm. Der Ausblick von hier ist atemberaubend, und an klaren Tagen kannst du sogar Hesselø am Horizont sehen. Kikhavn ist ein friedliches und charmantes Gebiet, das sowohl Ruhe und Entspannung als auch Erlebnisse für die ganze Familie bietet.
Unsere Gästebewertungen Externe Bewertungen
Ausstattung
-
Hausinfo.
-
2 x Dusche
-
2 x WC
-
Annexgrösse20 m²
-
Anzahl Erw.6
-
Anzahl Haustiere1
-
Baujahr1986
-
Grundstücksgröße2210 m²
-
Hausareal59 m²
-
Teilw. renoviert im Jahr
-
-
Entfernungen
-
Abstand Einkauf3,6 km
-
Entfernung Bahnhof/Zug3,6 km
-
Entfernung Küste400 m
-
Entfernung Restaurant3,6 km
-
Entfernung Strand500 m
-
-
Energie/Heizung
-
Kaminofen
-
Wärmepumpe / Ohne Kühlung
-
-
Küchengeräte
-
Abzugshaube
-
Backofen
-
Kaffeemaschine
-
Kochplatten
-
Kühlschrank m/Gefrierfach
-
Mikrowelle
-
Spülmaschine
-
Waschmaschine
-
Wasserkocher
-
-
Multimedien
-
Free Wi-Fi - Unter 20 Mbit
-
TV
-
-
Draußen
-
Gartenmöbel
-
GrillFeriepartner übernimmt keine Verantwortung für die Qualität oder den Zustand dieses Grills
-
Liegestühle
-
Parken auf dem Grundstück
-
Sonnenschirm
-
Terrasse
-
-
Diverse
-
3 x Doppelbett
-
Fußbodenheizung
-
Holz-/Parkettfussboden
-
Offene Küche
-
-
Regeln
-
Aufladung von Elektroautos nicht erlaubt
-
Rauchen verboten
-
-
Preis inbegriffen
-
Endreinigung inkl.
-
Wasser inkl.
-
Preise und Kalender
Kalender
Preis
- Ankunft
- Abreise
- Dauer
- 1 Woche
