Charmantes Ferienhaus am Kjul Strand mit Meerblick

Ferienhaus - 6 Personen - Tjørneklitten 10, Kjul - Kjul - 9850 - Hirtshals

Charmantes Ferienhaus am Kjul Strand mit mehreren Terrassen und Meeresnähe für erholsame Familienurlaube.

Beschreibung

Träumen Sie von einem Familienurlaub in Meeresnähe, bei dem Sie die Ruhe spüren, das Rauschen der Wellen hören und die Sonne auf mehreren herrlichen Terrassen genießen können? Dann ist dieses Ferienhaus am Kjul Strand an der Nordjütländischen Westküste die perfekte Wahl.

 

Hier drinnen erwartet Sie eine warme und heimelige Atmosphäre, in der viel Wert auf liebevolle Details gelegt wurde. Das Ferienhaus wurde fortlaufend renoviert, sodass Komfort und Charme harmonisch miteinander verbunden sind. Die Küche stammt aus der ursprünglichen Bauzeit des Hauses, befindet sich jedoch nach wie vor in ausgezeichnetem Zustand, ist mit modernen Elektrogeräten ausgestattet und vollständig eingerichtet für einen erholsamen Urlaub im Ferienhaus. Im Jahr 2021 kam ein wunderschöner Anbau hinzu, der ein zusätzliches Schlafzimmer, ein Badezimmer sowie einen behaglichen Aufenthaltsraum umfasst – ideal für Gesellschaftsspiele, Kartenspiele oder ruhige Momente mit einem guten Buch.

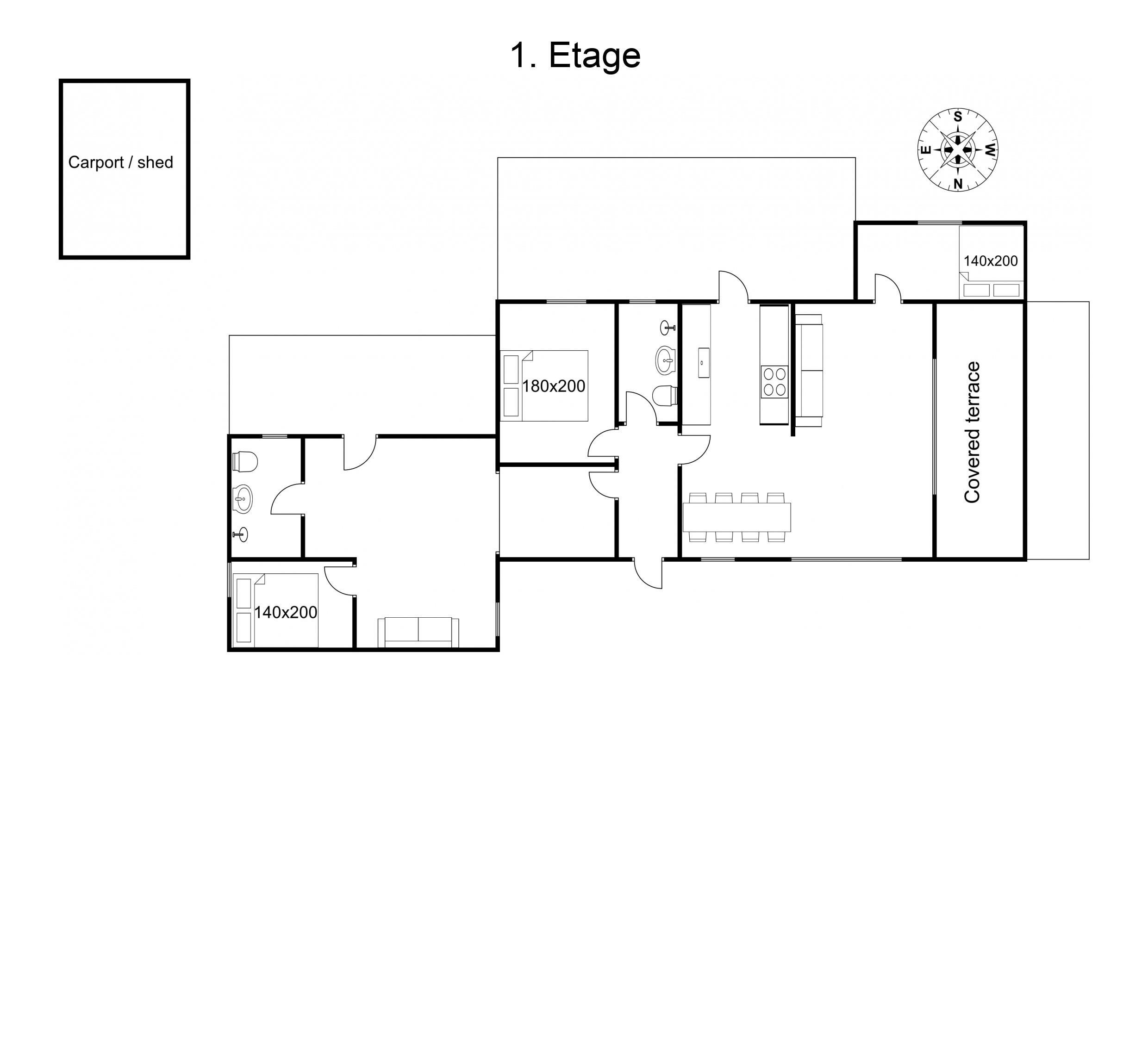
Das Haus bietet Platz für bis zu 6 Personen, verteilt auf 3 einladende Schlafzimmer. Die durchdachte Raumaufteilung macht das Ferienhaus ideal für Familienurlaube oder einen entspannten Aufenthalt mit Freunden. Die beiden modernen Badezimmer verfügen jeweils über eine Dusche und Fußbodenheizung.

 

Schlafzimmeraufteilung

Schlafzimmer 1: 2 Schlafplätze (Doppelbett 180x200 cm) 

Schlafzimmer 2: 2 Schlafplätze (Doppelbett 140x200 cm)

Schlafzimmer 3: 2 Schlafplätze (Doppelbett 140x200 cm)

 

Außenbereich 

Das Ferienhaus verfügt über mehrere herrliche Terrassen, auf denen Sie jederzeit Sonne und windgeschützte Plätze genießen können. Auf der südlich gelegenen Terrasse lässt sich die Vormittagssonne in vollen Zügen auskosten, während die überdachte Westterrasse ideal für lange Sommerabende in den warmen Strahlen der Abendsonne ist – vollkommen ungestört und begleitet vom beruhigenden Rauschen des Meeres. Auf der kleinen Anhöhe am Haus können Sie stille Momente verbringen und den atemberaubenden Sonnenuntergang über der Nordsee erleben. In dieser friedlichen Umgebung von Kjul kommen häufig Rehe und Fasane vorbei, die Sie direkt durch die großen Panoramafenster im Wohnzimmer beobachten können. Der Außenbereich ist liebevoll gestaltet mit kleinen Details, Blumen und einem kleinen Gemüsegarten, die eine besonders charmante Atmosphäre schaffen. Zudem steht ein Carport mit Platz für Fahrräder zur Verfügung.

 

Aktivitäten und Erlebnisse in der Umgebung 

Kjul ist umgeben von Meer, Wald und Dünen und bietet damit die idealen Voraussetzungen für Naturliebhaber und aktive Urlaubsgäste. Hier genießen Sie den feinen Sandstrand, die frische Meeresbrise, die beeindruckende Dünenlandschaft und die Ruhe des Waldes.

Vom Ferienhaus sind es lediglich 250 Meter bis zum Kjul Strand, der für seinen breiten, kinderfreundlichen Sandstrand und das klare Badewasser bekannt ist – perfekt sowohl zum Entspannen als auch zum Spielen. Die großartige Natur an der Nordjütischen Westküste lädt zu langen Spaziergängen, Radtouren und erfrischenden Stunden an der frischen Seeluft ein. Von Kjul aus erreichen Sie in kurzer Zeit Hirtshals, wo gemütliche Cafés, Restaurants und ein lebendiges Hafenmilieu auf Sie warten. Hier können Sie ein köstliches Gericht mit fangfrischem Fisch oder ein leckeres Eis genießen.

Ein Besuch im Nordsøen Oceanarium ist ebenfalls sehr empfehlenswert – es handelt sich um das größte Aquarium Nordeuropas mit über 70 verschiedenen Fischarten. In der Umgebung erwarten Sie somit sowohl charmante Orte, kulturelle Angebote als auch vielfältige Ausflugsmöglichkeiten – ganz gleich, ob Sie Ruhe suchen oder spannende Erlebnisse.

 

Verbringen Sie mit Ihrer Familie einen unvergesslichen Urlaub am Kjul Strand.
Freuen Sie sich auf erholsame Tage am Meer in einem Ferienhaus voller Charme, Ruhe und naturschöner Umgebung an der nordjütländischen Westküste.

Beliebteste Ausstattungen

  • Schlafzimmer 3
  • Badezimmer 2
  • Wohnfläche 99 m²
  • Grundstück 1.430 m²
  • Haustiere Nicht erlaubt
  • Kurzurlaub möglich Nein
  • Entfernung Wasser 300 m
  • Einkaufen 5.700 m
  • Internet Ja
  • Kaminofen Ja
  • Waschmaschine Ja
  • Geschirrspüler Ja
  • Nichtraucher Ja
  • Klimafreundlich Ja

Gesamte Ausstattung

  • Badezimmer

    • Waschmaschine
    • Badezimmer
      2
    • Fußbodenheizung im Bad
  • Küche

    • Spülmaschine
    • Mikrowelle
    • Gefriertruhe, Liter
      55
    • Kaffeemaschine
    • Kühlschrank
    • Esstisch
    • Ovne
    • Toaster
    • Weinglas
    • Töpfe und Pfannen
    • Wasserkocher
    • Teller und Schüsseln
    • Küchenutensilien
    • Küche
  • Schlafzimmer

    • Anzahl der Schlafräume
      3
    • 3/4 Bett 140x200cm
      2
    • Doppelbett (180x200cm)
      1
  • Info

    • Baujahr/renoviert
      1976
    • Grundstücksgröße
      1430
    • Hausareal
      99
    • Entfernung Strand (Meter)
      300 m
    • Entfernung zum Einkaufen (Meter)
      5,7 km
    • Renoviert
    • Max. Anzahl Personen
      6
    • Renoviert
      2021
    • Entfernung zum Golfplatz (Meter)
      2,1 km
    • Decken und Kissen
    • Energiefreundliches Ferienhaus
    • Nachrichten
    • Ferienhaus
  • Multimedien

    • TV
    • WLAN
    • Chromecast
    • Dän. TV-Kanäle
    • Deutsche TV-Kanäle
    • Schwedische Programme
    • Norwegische TV-Kanäle
    • Anzahl der Fernseher
      1
  • Heizquelle

    • Kaminofen / Kamin / Biokamin
    • Elektroheizung
    • Wärmepumpe
  • Außenanlagen

    • Gartenmöbel
    • Grill
    • Liegestühle
      4
    • Kohlegrill
    • Sonnenschirm
    • Naturgrundstück
    • Überdachte Terrasse
    • Terrasse oder Balkon
    • Parken - GRATIS
  • Einrichtung

    • Nichtraucher
    • Rauchmelder
    • Privater Eingang

Kurzurlaub

Prices and calendar

Kalender

Ankunft
Vorheriger Monat Nächster Monat
  • August 2026
    MoDiMiDoFrSaSo
    3112
    323456789
    3310111213141516
    3417181920212223
    3524252627282930
    3631
  • September 2026
    MoDiMiDoFrSaSo
    36123456
    3778910111213
    3814151617181920
    3921222324252627
    40282930
    41
   Verfügbarkeit am ausgewählten Datum prüfen
Frei
Nicht frei
   Ankunft möglich
Dauer

Preis

Zeitraum
Ankunft
Abreise
Dauer
1 Woche
Personen
Bis zu 6 Personen

Bitte beachten

Ankunftszeit wurde nicht ausgewählt.
Vertrags- und Mietbedingungen