Ferienhaus mit Panorama-Meerblick am Strand

Ferienhaus - 6 Personen - Havstokken - Knivkär Strand - 4220 - Korsör

Gemütliches Ferienhaus am Knivkær Strand mit Panorama-Meerblick, Sauna, Whirlpool und großer Terrasse direkt am Wasser.

Beschreibung

Ferienhaus in der ersten Häuserreihe am Knivkær Strand mit einmaligem Panoramablick

Einrichtung
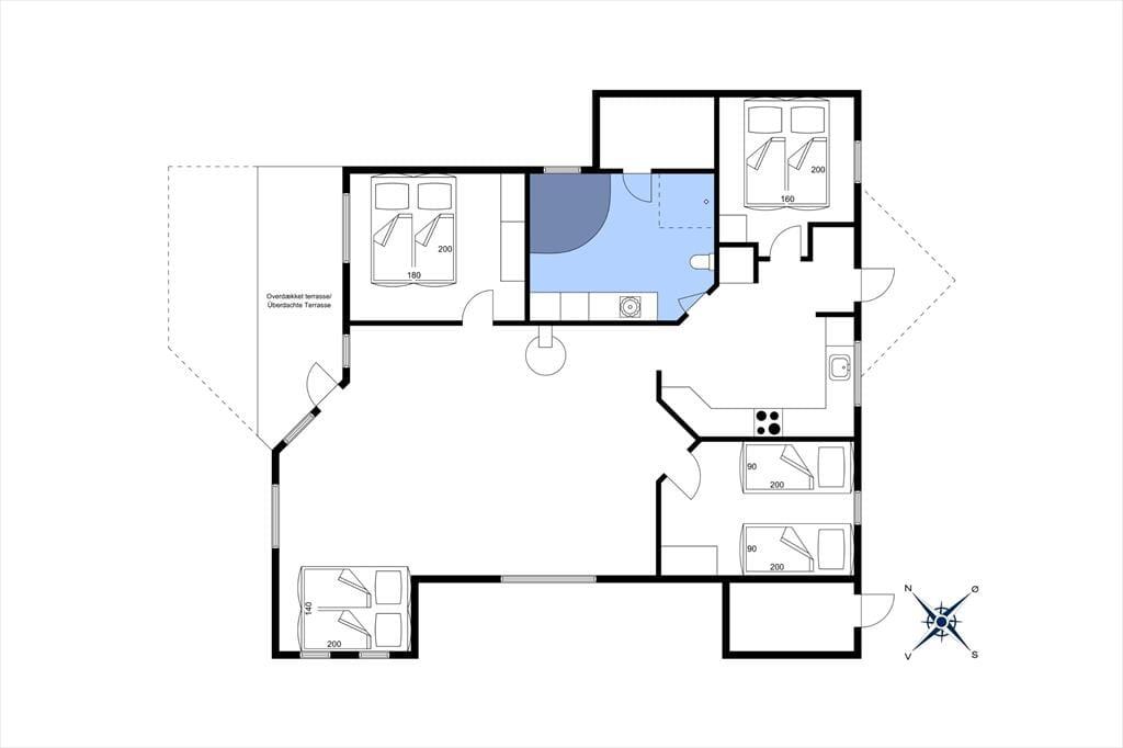
Das Ferienhaus empfängt Sie mit einem offen kombinierten Küchen- und Wohnbereich. Die gut ausgestattete, helle Küche erleichtert Ihnen mit einem Backofen, einem Ceranfeldherd, einem Geschirrspüler, einer Mikrowelle und einem Kühlschrank mit Gefriermöglichkeit Ihre alltäglichen Aufgaben. Vom Wohnraum gelangen Sie direkt hinaus auf die schöne, teilweise überdachte Terrasse mit einzigartigem Ausblick. Der Wohnraum ist mit einem Sofa, Lehnstühlen, einem Fernseher mit BOXER-Abonnement, einem Kamin und einem gemütlichen Essplatz samt schöner Aussicht über das Wasser eingerichtet. Im Badezimmer erwarten Sie eine Duschnische, ein Whirlpool, eine Sauna, eine Waschmaschine und eine Fußbodenheizung. Ihnen stehen ein Schlafraum mit zwei Einzelbetten und zwei Schlafräume mit jeweils einem Doppelbett zur Verfügung. Die gemütliche Schlafnische im Wohnraum bietet zusätzlich Platz für zwei Personen. Für die allerkleinsten Urlauber stehen ein Hochstuhl und ein Kinderbett im Haus bereit. Heizung des Hauses erfolgt durch Wärmepumpe, Holzofen und El heizung.

Dieses attraktive Mietobjekt verfügt über kostenloses WLAN. Die Endreinigung ist obligatorisch.

Außenbereich
Das Ferienhaus befindet sich auf einem 1.428 m² großen Grundstück. An das Haus schließen eine offene und eine teilweise überdachte Terrasse, sodass vielen entspannten Urlaubsstunden unter freiem Himmel absolut nichts entgegen steht. Machen Sie es sich auf der Terrasse gemütlich, genießen Sie die Ruhe und die Aussicht und lassen Sie die langen lauen Sommerabende bei einem köstlichen Essen vom Grill ausklingen. Gartenmöbel, Liegestühle, ein Grill und ein Sonnenschirm sind selbstverständlich vorhanden.

Lage
Das Urlaubsdomizil liegt lediglich 80 Meter von der Wasserkante am Knivkær Strand entfernt. Knivkær Strand befindet sich an der Küste, nördlich der Stadt Korsør. Von hier aus können Sie eine atemberaubende Aussicht auf die Große-Belt-Brücke genießen. Am kinderfreundlichen, guten Sandstrand mit Uferböschungen erleichtert Ihnen eine Badebrücke den Einstieg in das blaue Nass. Die nächsten Einkaufsmöglichkeiten liegen etwa 6 Kilometer entfernt in Korsør. Innerhalb weniger Minuten erreichen Sie auch die Stadt Korsør und die Autobahn. Zu den nächstgrößeren Städten zählen Korsør, Slagelse und Skælskør. Die Umgebung bietet Ihnen vielfältige Ausflugsmöglichkeiten. Die Fußgängerzonen und gemütlichen Cafés in Slagelse laden zum Bummeln und Verweilen ein. Jeden Mittwoch haben Sie hier zudem die Möglichkeit, die berittene Garde der größten Kaserne Dänemarks, bei Ihrem Ritt durch die Stadt zu bewundern. Nahe Slagelse lockt die alte Wikingerburg Trelleborg, die zum dänischen Kulturerbe zählt, mit einer Zeitreise in die aufregende Geschichte der Wikinger. Für einen Adrenalinausstoß der Extraklasse sorgt der Kletterpark Kragerup Go High. Auf einer Länge von sechs Kilometern bewegen Sie sich hier auf spektakuläre Weise durch die Baumwipfel in den Wäldern von Gut Kragerup. Das Panzermuseum East bei Slagelse beeindruckt militärisch interessierte Besucher mit einer imposanten Sammlung von Kriegsmaterialien und Militärfahrzeugen aus den Zeiten des Kalten Krieges.


Raumaufteilung

  • Schlafzimmer
    • Doppelbett - 160x200
  • Schlafzimmer
    • Doppelbett - 160x200
  • Schlafzimmer
    • Einzelbett - 90x200
    • Einzelbett - 90x200
  • Alkoven
    • Einzelmatratze - 140x200

Beliebteste Ausstattungen

  • Schlafzimmer 3
  • Badezimmer 1
  • Wohnfläche 88 m²
  • Grundstück 1.428 m²
  • Haustiere Nicht erlaubt
  • Kurzurlaub möglich Ja
  • Entfernung Wasser 80 m
  • Einkaufen 6.200 m
  • Whirlpool Ja
  • Sauna Ja
  • Internet Ja
  • Kaminofen Ja
  • Wasserblick Ja
  • Klimaanlage Ja
  • Waschmaschine Ja
  • Trockner Ja
  • Geschirrspüler Ja
  • Nichtraucher Ja
  • Klimafreundlich Ja

Gesamte Ausstattung

  • Hausinfo.

    • Anzahl Erw.
      6
    • Baujahr
      2007
    • Dusche
    • Grundstücksgröße
      1428 m²
    • Hausareal
      88 m²
    • Meerblick
    • Panorama
    • Sauna
    • WC
    • Whirlpool, drinnen
  • Entfernungen

    • Entfernung Bahnhof/Zug
      4,2 km
    • Entfernung Einkauf / Ganzjahresgeschäft
      6,2 km
    • Entfernung Küste
      80 m
    • Entfernung Restaurant
      3,5 km
    • Entfernung Schwimmhalle
      12,1 km
    • Entfernung Strand / Sandstrand
      80 m
    • Entfernung zum Golfplatz
      5,7 km
  • Energie/Heizung

    • Elektroheizung
    • Kaminofen
    • Wärmepumpe / Mit Kühlung
  • Küchengeräte

    • Abzugshaube
    • Backofen
    • Bügelbrett
    • Bügeleisen
    • Kaffeemaschine
    • Kochplatten
    • Kühlschrank m/Gefrierfach
    • Mikrowelle
    • Spülmaschine
    • Waschmaschine
    • Wasserkocher
    • Wäschetrockner
  • Multimedien

    • Chromecast
    • Free Wi-Fi - Unter 20 Mbit
    • TV
  • Extra

    • Golf-Urlaub
    • Hochstuhl
    • Kinderfreundlich
  • Draußen

    • 2 x Terrasse
    • Carport
    • Gartenmöbel
    • Grill
    • Liegestühle
      2
    • Parken auf dem Grundstück
    • Sandkiste
    • Schaukel
    • Sonnenschirm
      2
    • Spielhaus
    • Teilw. überdachte Terrasse
    • Trampolin
  • Diverse

    • 2 x Fliesenboden
    • 4 x Holz-/Parkettboden
    • Fußbodenheizung
  • Regeln

    • Aufladung von Elektroautos nicht erlaubt
    • HAUSTIER NICHT ERLAUBT
    • Rauchen verboten
  • Preis inbegriffen

    • Endreinigung inkl.
  • ALT

    • DVD

Kurzurlaub

Sie haben das ganze Jahr die Möglichkeit einen Kurzurlaub zu machen.

Prices and calendar

Kalender

Ankunft
Vorheriger Monat Nächster Monat
  • August 2026
    MoDiMiDoFrSaSo
    3112
    323456789
    3310111213141516
    3417181920212223
    3524252627282930
    3631
  • September 2026
    MoDiMiDoFrSaSo
    36123456
    3778910111213
    3814151617181920
    3921222324252627
    40282930
    41
   Verfügbarkeit am ausgewählten Datum prüfen
Frei
Nicht frei
   Ankunft möglich
Dauer

Preis

Zeitraum
Ankunft
Abreise
Dauer
3 Übernachtungen
Personen
Bis zu 6 Personen

Bitte beachten

Ankunftszeit wurde nicht ausgewählt.
Vertrags- und Mietbedingungen

Unsere Gästebewertungen Externe Bewertungen

5,0
Bezogen auf 1 Bewertung
Bewertung ist vom 08.09.2024
5
(1)
4
(0)
3
(0)
2
(0)
1
(0)
Kommentare
Keine Bewertungen haben Kommentare.