Ferienhaus mit Fjordblick und naturnahem Garten

Ferienhaus - 6 Personen - Sønderbyvej - Söndervig - 6950 - Ringköbing

Ferienhaus mit herrlichem Blick zum Ringkøbing Fjord und naturnaher Lage in Søndervig, Dänemark.

Beschreibung

Ferienhaus mit fantastischem Ausblick zum Ringkøbing Fjord von allen Zimmern in Richtung Süden. Vor allem oben in der 1. Etage kann man viel von der wunderschönen Landschaft sehen! Genießen Sie den Sonnenaufgang oder machen Sie einen Spaziergang zum Fjord und werden Sie eins mit der Natur.

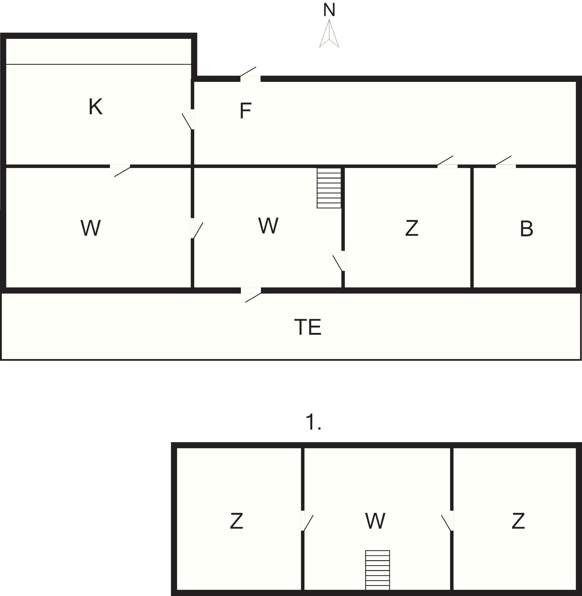
Das Ferienhaus ist mit drei Schlafzimmern mit jeweils zwei Schlafplätzen ausgestattet; ein Doppelbett in einem Zimmer und zwei Zimmer mit je zwei Einzelbetten. Es gibt auch ein Kinderbett und einen Hochstuhl für die Kleinen. Klimafreundliche Wärmepumpe sowie gemütlicher Holzofen für kühlere Tage. In jedem Zimmer gibt es dazu Elektro-Heizung. Auf dem Grundstück findet man einen Außenkamin, einen Sandkasten, Gartenmöbel und einen Teich mit Goldfischen vor.

Weniger als 1 km vom Ferienhaus entfernt befindet sich ein Surfspot, an dem Sie z.B. surfen und kitesurfen können, da das Wasser dort flach ist. Zum Einkaufen gelangen Sie bequem nach Søndervig. Ringkøbing und Hvide Sande sind weniger als eine Viertelstunde mit dem Auto vom Haus entfernt.

Keine Vermietung an Jugendgruppen erwünscht!

1 Wohnz.: Holzofen, TV
3 Schlafz.: (1DB)+(2B)+(2B), Kinderbett, Hochstuhl
1 Mehrzweckr.: DVD
Küche: E-Herd, Kühlschr., Gefriertruhe 1-59 l., Mikrow., Kaffeem., Spülm.
Bad: WC, Waschb., Dusche
1 Außenbereich: Gartenmöbel, Außenkamin, Terrasse
Und: E-Heiz., Luft-Luft-Wärmepumpe, Spielgeräte, Garten 800 m2, reizvolle Lage

Schlüsselinformationen
  • Das Ferienhaus steht Ihnen am Anreisetag ab 16:00 Uhr zur Verfügung.
  • Die Schlüsselübergabe findet am Haus statt.
  • Dieses Haus ist Smart-Lock-fähig

Beliebteste Ausstattungen

  • Schlafzimmer 3
  • Badezimmer 1
  • Wohnfläche 110 m²
  • Haustiere Nicht erlaubt
  • Kurzurlaub möglich Ja
  • Entfernung Wasser 600 m
  • Einkaufen 800 m
  • Internet Ja
  • Kaminofen Ja
  • Geschirrspüler Ja
  • Nichtraucher Ja
  • Klimafreundlich Ja

Gesamte Ausstattung

  • Badezimmer

    • Dusche
    • Waschbecken
    • WC
  • Diverse

    • Anzahl Badezimmer
      1
    • Anzahl Schlafzimmer
      3
    • Badeland
    • Baujahr
      1920
    • Energiehaus
    • Hoch Geschwindigkeits Internet
    • Hochstuhl
    • Internet
    • Luft/Luft Wärmepumpe
    • Nationales Fernsehen
    • Nichtraucher
    • Renoviert
      2024
    • Wohnfläche in m²
      110 m²
  • Draußen

    • Bademöglichkeiten (flach)
    • Gartenmöbel
    • Kamin im Freien
    • Terrasse
  • Drinnen

    • DVD-player
    • Kamin / Holzofen
    • Kinderbett
    • Spielgeräte
    • TV
  • Entfernung

    • Angelgewässer
      1,5 km
    • Bus
      400 m
    • Einkauf
      800 m
    • Golf
      1,5 km
    • Küste
      3,7 km
    • Postamt
      800 m
    • Restaurant
      950 m
    • See
      600 m
    • Stadt/Ort
      800 m
    • Strand
      3,7 km
    • Zug
      8 km
  • Küche

    • Elektroherd
    • Gefriertruhe 1-59 L
    • Kaffeemaschine
    • Kühlschrank
    • Mikrowelle
    • Spülmaschine

Kurzurlaub

Es besteht eine begrenzte Möglichkeit das ganze Jahr einen Kurzurlaub zu machen, typischerweise ausserhalb der Hochsaison.

Prices and calendar

Kalender

Ankunft
Vorheriger Monat Nächster Monat
  • April 2026
    MoDiMiDoFrSaSo
    1412345
    156789101112
    1613141516171819
    1720212223242526
    1827282930
    19
  • Mai 2026
    MoDiMiDoFrSaSo
    18123
    1945678910
    2011121314151617
    2118192021222324
    2225262728293031
    23
   Verfügbarkeit am ausgewählten Datum prüfen
Frei
Nicht frei
   Ankunft möglich
Dauer

Preis

Zeitraum
Ankunft
Abreise
Dauer
1 Woche
Personen
Bis zu 6 Personen

Bitte beachten

Ankunftszeit wurde nicht ausgewählt.
Vertrags- und Mietbedingungen

Unsere Gästebewertungen Externe Bewertungen

1,0
Bezogen auf 1 Bewertung
Bewertung ist vom 19.10.2025
5
(0)
4
(0)
3
(0)
2
(0)
1
(1)
Kommentare
1 Bewertung hat einen Kommentar auf Deutsch.
2 Erwachsene 0 Kinder 0 Haustiere 7 Übernachtungen 2025 Oktober
Wer Kellerasseln mag, wird das Haus lieben
2,8
Möblierung:
3,4
Empfehlenswert:
2,7
Insgesamt mit Kindern:
3,2
Insgesamt ohne Kinder:
1,0
Externe Bewertungen
Keine detaillierten externen Bewertungen