Charmantes Ferienhaus mit viel Natur und Komfort

Ferienhaus - 5 Personen - Floddalsvej - Tversted - 9881 - Bindslev

Charmantes Ferienhaus in Bindslev mit modernem Komfort und großem Naturgrundstück, ideal für entspannte Tage nahe Nordsee und Tversted.

Beschreibung

Treten Sie ein in die Ferienoase hier an der Floddalsvej. Dieses charmante Ferienhaus befindet sich auf einem großzügigen und einladenden Grundstück, das direkt an friedliche Naturschutzgebiete grenzt, und es ist der perfekte Rückzugsort für totale Entspannung. Wenn Sie die Umgebung erkunden möchten, sind die Tversted Klitplantage, die Nordsee und die Stadt Tversted nur eine kurze Fahrt entfernt.

Willkommen in deinem Ferienhaus
Im Inneren werden Sie sofort die herrliche Urlaubsatmosphäre spüren. Die letzte Renovierung, die 2021 durchgeführt wurde, hat dem Badezimmer einen modernen Touch verliehen, das jetzt hell und einladend mit einer eleganten Dusche und Fußbodenheizung erscheint. Das Wohnzimmer wurde mit einem Erker erweitert, was sowohl den Lichteinfall als auch den fantastischen Ausblick erhöht. Die Atmosphäre im Wohnzimmer ist äußerst angenehm, besonders wenn der Kamin knistert und das Essen im offenen Küchenbereich zubereitet wird. Wenn es Zeit für das Bett ist, erwartet Sie eine gute Nachtruhe in den drei gemütlichen Schlafzimmern.

Genieße das Leben im Freien
Draußen erstreckt sich das schöne Naturgrundstück über 2.800 Quadratmeter. Geschützte Naturschutzgebiete umgeben das Grundstück, und es ist nicht ungewöhnlich, Hasen, Füchse, Fasane und Rehe direkt am Ferienhaus vorbeizuwandern. Hier herrscht ein echtes Gefühl von Frieden und Ruhe, perfekt, um das Tempo zu drosseln und das Leben auf der Terrasse zu genießen. Die große, teilweise überdachte Terrasse ist abgeschirmt und völlig privat, und hier finden Sie alles, was Sie für Gartenmöbel, Liegen und Grill benötigen.

Entdecke deine Umgebung
Das Ferienhaus liegt in einer Sackgasse, was die friedliche Atmosphäre noch verstärkt. Wenn Sie Lust auf ein erfrischendes Bad oder einen entspannenden Spaziergang entlang der Nordsee haben, ist der Strand nur 1,2 Kilometer entfernt. Der Tversted Strand ist einer der schönen, weißen Sandstrände entlang der Tannis Bugt, mit hohen Dünen und einem äußerst beliebten Eiscafé, das Besucher aus nah und fern anzieht. Es ist auch nur eine kurze Entfernung zum Stadtzentrum von Tversted mit gemütlichen Restaurants und Einkaufsmöglichkeiten. Wenn Sie eher an Waldwanderungen interessiert sind, begeben Sie sich auf ein Abenteuer in der nahegelegenen Tversted Klitplantage. Hirtshals und Skagen sind ebenfalls einen Besuch wert, und beide Städte liegen in bequemer Fahrdistanz vom Ferienhaus entfernt.

Denken Sie daran, dass Sie jederzeit bei uns in Tversted Bollerwagen, Kindersitze und Kinderbetten ausleihen können. Sie können sie direkt im Büro abholen und nach Abschluss Ihres Urlaubs wieder zurückbringen.


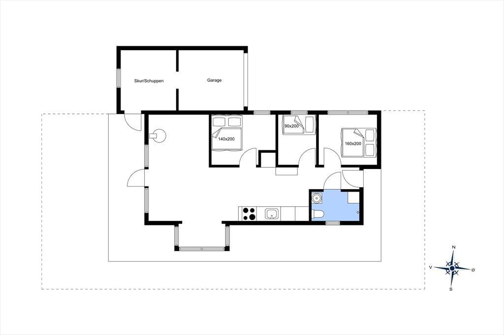
Raumaufteilung

  • Schlafzimmer
    • Doppelbett - 160x200
  • Schlafzimmer
    • Doppelbett - 140x200
  • Schlafzimmer
    • Einzelbett - 90x200

Beliebteste Ausstattungen

  • Schlafzimmer 3
  • Badezimmer 1
  • Wohnfläche 79 m²
  • Grundstück 2.800 m²
  • Haustiere Nicht erlaubt
  • Kurzurlaub möglich Nein
  • Entfernung Wasser 1.200 m
  • Einkaufen 1.300 m
  • Internet Ja
  • Satelliten-/Kabel TV Ja
  • Kaminofen Ja
  • Waschmaschine Ja
  • Trockner Ja
  • Geschirrspüler Ja
  • Nichtraucher Ja
  • Klimafreundlich Ja

Gesamte Ausstattung

  • Hausinfo.

    • Anzahl Erw.
      5
    • Baujahr
      1983
    • Dusche
    • Grundstück / Naturgrund
      2800 m²
    • Hausareal
      79 m²
    • Renovierungsjahr
      2018
    • WC
  • Entfernungen

    • Entfernung Einkauf / Ganzjahresgeschäft
      1,3 km
    • Entfernung Restaurant
      1,3 km
    • Entfernung Strand / Sandstrand
      1,2 km
    • Entfernung zum Golfplatz
      10,5 km
  • Energie/Heizung

    • Elektroheizung
    • Kaminofen
    • Wärmepumpe / Ohne Kühlung
  • Küchengeräte

    • Abzugshaube
    • Backofen
    • Bügelbrett
    • Bügeleisen
    • Gefriertruhe
      63
    • Kaffeemaschine
    • Kochplatten
    • Kühlschrank
      230
    • Mikrowelle
    • Spülmaschine
    • Waschmaschine
    • Wasserkocher
    • Wäschetrockner
  • Multimedien

    • Deutsche Kanäle
    • Dän. TV
    • Gratis Wi-Fi - Über 20 Mbit
    • Norw. TV
    • Parabol
    • Schwedisches TV
    • TV
  • Extra

    • Hochstuhl
  • Draußen

    • Gartenmöbel
    • Grill
      Kohle
    • Liegestühle
      2
    • Offene Terrasse
    • Parken auf dem Grundstück
    • Schaukel
    • Sonnenschirm
      1
    • Überdachte Terrasse
  • Diverse

    • Fußbodenheizung
  • Regeln

    • Aufladung von Elektroautos nicht erlaubt
    • HAUSTIER NICHT ERLAUBT
    • Rauchen verboten
  • Preis inbegriffen

    • Endreinigung inkl.
    • Feuerholz inkl.
    • Wasser inkl.

Kurzurlaub

Prices and calendar

Kalender

Ankunft
Vorheriger Monat Nächster Monat
  • Juli 2026
    MoDiMiDoFrSaSo
    2712345
    286789101112
    2913141516171819
    3020212223242526
    312728293031
    32
  • August 2026
    MoDiMiDoFrSaSo
    3112
    323456789
    3310111213141516
    3417181920212223
    3524252627282930
    3631
   Verfügbarkeit am ausgewählten Datum prüfen
Frei
Nicht frei
   Ankunft möglich
Dauer
Personen

Preis

Zeitraum
Ankunft
Abreise
Dauer
1 Woche
Personen
Keine Personen ausgewählt

Bitte beachten

Ankunftszeit wurde nicht ausgewählt.
Es wurden keine Personen ausgewählt.
Vertrags- und Mietbedingungen