Ferienhaus - 6 Personen - Hjortevænget - Baaring Ege - 5466 - Asperup
Alternative Objekte
In der Nähe (29)Übersicht
- Schlafzimmer 3
- Badezimmer 1
- Wohnfläche 91 m²
- Grundstück 2.550 m²
- Haustiere 1
- Kurzurlaub möglich Ja
- Entfernung Wasser 300 m
- Einkaufen 5 km
- Internet Ja
- Satelliten-/Kabel TV Ja
- Kaminofen Ja
- Gute Angelmöglichkeiten Ja
- Wasserblick Ja
- Eingezäunter Bereich Ja
- Klimaanlage Ja
- Waschmaschine Ja
- Geschirrspüler Ja
- Nichtraucher Ja
- Klimafreundlich Ja
Beschreibung
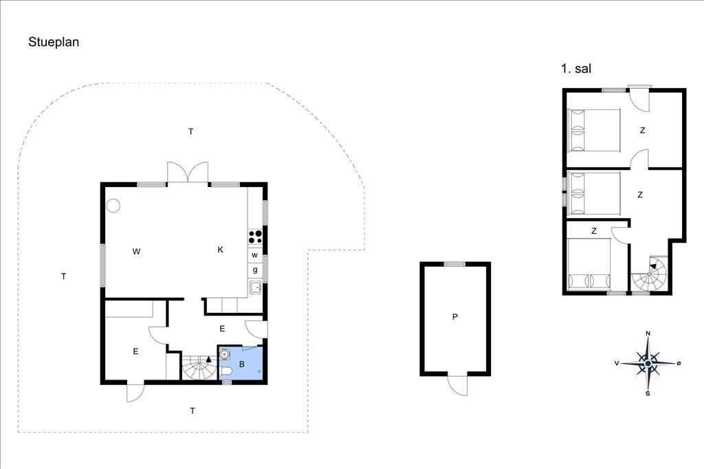
Gepflegtes Ferienhaus mit einem einmaligen Meerblick im beliebten Båring Ege. Das Haus umfasst im Erdgeschoss einen Eingangsbereich mit Treppe zum ersten Stock, ein kleines Badezimmer, einen Hauswirtschaftsraum sowie ein großes kombiniertes Ess- und Wohnzimmer mit Kamin, Zugang zur Terrasse, energiesparender Wärmepumpe sowie in offener Verbindung mit einer gut ausgestatteten Küche mit Wasch- und Geschirrspülmaschine. Im ersten Stock gibt es zwei Schlafzimmer mit jeweils einem Doppelbett sowie einen Treppenabsatz als Durchgangszimmer ebenfalls mit Doppelbett. Fantastischer Meerblick von Haus, Garten und Terrasse. Ein gemütliches Ferienhaus in einer ruhigen Lage, nahe Meer und Strand. Der er Fibernet i huset.
Das Gebiet
Båring Ege ist ein ruhiges und naturschönes Ferienhausgebiet mit Hügeln, Wald und Strand. Das Gebiet liegt ca. 10 km von Middelfart entfernt, wo man in der großen Fußgängerzone einen Einkaufsbummel machen kann oder die moderne Hafenfront mit Cafés und Restaurants besuchen kann. Das Gebiet ist ideal als Ausgangspunkt für Ausflüge. LEGOLAND® liegt nur eine Autostunde entfernt, und Odense, Fünens größte Stadt, ist nur 30 km vom Gebiet entfernt.
Unsere Gästebewertungen Externe Bewertungen
Ausstattung
-
Hausinfo.
-
Anzahl Erw.6
-
Anzahl Etagen2
-
Anzahl Haustiere1
-
Baujahr1975
-
Dusche
-
Grundstück / Naturgrund2550 m²
-
Hausareal91 m²
-
Meerblick
-
WC
-
-
Entfernungen
-
Abstand Einkauf5 km
-
Entfernung Meer300 m
-
Entfernung Restaurant4 km
-
Entfernung Strand / Sand-, Kieselstrand300 m
-
Entfernung zum Golfplatz12 km
-
-
Energie/Heizung
-
Elektroheizung
-
Kaminofen
-
Wärmepumpe / Mit Kühlung
-
-
Küchengeräte
-
Abzugshaube
-
Backofen
-
Bügelbrett
-
Bügeleisen
-
Kaffeemaschine
-
Kochplatten
-
Kühlschrank m/Gefrierfach100
-
Mikrowelle
-
Spülmaschine
-
Waschmaschine
-
Wasserkocher
-
-
Multimedien
-
Apple TV
-
Chromecast
-
Deutsche KanäleZDF, RTL, ARD, Sat1
-
Dän. TVTV2
-
Kostenloses WLAN - mehr als 100 Mbit
-
Norw. TVNRK1, TV2 Norwegen
-
Parabol
-
Schwedisches TVSVT1, TV4 Schweden
-
TV
-
-
Extra
-
Gute Angelmöglichkeiten
-
Hochstuhl
-
Kinderbett
-
-
Draußen
-
Gartenmöbel
-
geschlossener Garten/Grund
-
Grill
-
Liegestühle
-
Parken auf dem Grundstück
-
Schaukel
-
Sonnenschirm
-
Terrasse
-
-
Diverse
-
3 x Doppelbett
-
3 x Holz-/Parkettboden
-
5 x Fliesen-/Marmorboden
-
-
Regeln
-
Aufladung von Elektroautos nicht erlaubt
-
Haustiere: nur Hunde erlaubt
-
Rauchen verboten
-
-
Preis inbegriffen
-
Endreinigung inkl.
-
-
ALT
-
DVD
-
Radio
-
Kurzurlaub
Preise und Kalender
Kalender
Preis
- Ankunft
- Abreise
- Dauer
- 1 Woche
