Ehemaliger Bauernhof mit Whirlpool und Garten
Ferienhaus - 14 Personen - Mellemvej - Lyngs - 7790 - Thyholm
Alternative Objekte
In der Nähe (4)14 Personen
Übersicht
Objekt Nr.: 121-31-0023
7 Übernachtungen
Ab
EUR 542,-
Reinigung auf Wunsch: EUR 312,-
Geräumiges ehemaliges Bauernhaus in Thyholm mit Whirlpool, großem Garten und vielfältigen Freizeitangeboten für Familien und Gruppen.
- Schlafzimmer 5
- Badezimmer 2
- Wohnfläche 300 m²
- Grundstück 5.000 m²
- Haustiere 2
- Kurzurlaub möglich Ja
- Entfernung Wasser 3 km
- Einkaufen 3 km
- Whirlpool Ja
- Internet Ja
- Satelliten-/Kabel TV Ja
- Spiel- und Sportzimmer Ja
- Waschmaschine Ja
- Trockner Ja
- Geschirrspüler Ja
- Nichtraucher Ja
- Klimafreundlich Ja
Beschreibung
In ländlicher Umgebung in der Nähe vom Limfjord liegt dieses gemütliche und geräumige Ferienhaus mit ausreichend Platz für eine Großfamilie oder mehrere Freunde, die gemeinsam Urlaub machen möchten. Der große grüne Garten bietet reichlich Platz für Spiel und Spaß.
Einrichtung
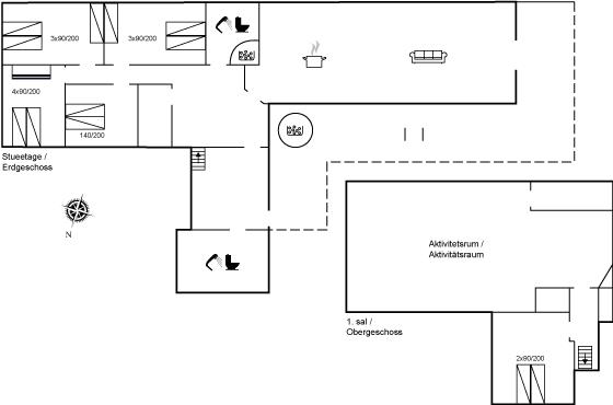
Dieser ehemalige Bauernhof eignet sich für 14 Personen sowie 2 Kleinkinder bis zu 3 Jahren. Die Ferienunterkunft hat eine Wohnfläche von 300 m², ist 2-stöckig, und wurde 1900 gebaut. 2018 wurde die Ferienunterkunft renoviert. Es ist erlaubt 2 Haustiere mitzubringen. Die Ferienunterkunft ist mit energiesparender Wärmepumpe ausgestattet. Fußbodenheizung in allen Räumen. Die Ferienunterkunft ist mit Waschmaschine ausgestattet. Wäschetrockner. Tiefkühlmöglichkeit mit 150 Liter Nutzinhalt. Für die jüngsten Feriengäste sind 2 Kinderhochstühle vorhanden. Wickeltisch.
Draußen
Die Ferienunterkunft liegt auf einem 5000 m² großen Naturgrundstück. Die Entfernung zum Fjord beträgt 3000 m. Die nächste Einkaufsmöglichkeit liegt 3000 m entfernt. In einem Abstand von 15000 m gibt es einen Golfplatz. Es steht ein 75 m² Terrassenareal zur Verfügung. Schaukel. Sandkasten. Trampolin.Lagerfeuerstelle. Parkplatz auf dem Grundstück.
Hobbyraum
Hobbyraum mit: Pooltisch. Tischtennis. Dart. Airhockey. Tischfußball.
Schlafverhältnisse
Die Schlafplätze verteilen sich auf 5 Schlafräume. 2 Schlafplätze in einem Doppelbett. 10 Schlafplätze in Einzelbetten. 2 Schlafplätze in einem Etagenbett. Ferner stehen 2 Kinderbetten zur Verfügung.
Küche
Die Küche ist mit amerikanischem Kühlschrank ausgestattet. Extra Kühlschrank vorhanden.. Außerdem gibt es 4 Keramik-Kochfelder, Umluftofen, Mikrowelle sowie Geschirrspüler.
WC und Bad
Es gibt 2 Badezimmer mit Duschnische und 2 Toiletten.
Whirlpool
Entspannen Sie sich im Innen-Durchlauf-Whirlpool für 2 Personen. Im Hot Tub für 6 Personen können Sie den Aufenthalt im Freien genießen.
Multimedien
In der Ferienunterkunft gibt es einen Fernseher. Radio. Stereoanlage.Playstation 3. Mindestens 4 dänische Fernsehsender. 1-3 schwedische Fernsehsender. 1-3 norwegische Fernsehsender. Mindestens 4 deutsche Fernsehsender. Es steht kabellose Internetverbindung zur Verfügung.
Wissenswertes
Rauchen ist nicht zugelassen. Bei Nichtbeachtung dieses Verbots wird eine Gebühr von mindestens EUR 420,- erhoben.
Einrichtung
Dieser ehemalige Bauernhof eignet sich für 14 Personen sowie 2 Kleinkinder bis zu 3 Jahren. Die Ferienunterkunft hat eine Wohnfläche von 300 m², ist 2-stöckig, und wurde 1900 gebaut. 2018 wurde die Ferienunterkunft renoviert. Es ist erlaubt 2 Haustiere mitzubringen. Die Ferienunterkunft ist mit energiesparender Wärmepumpe ausgestattet. Fußbodenheizung in allen Räumen. Die Ferienunterkunft ist mit Waschmaschine ausgestattet. Wäschetrockner. Tiefkühlmöglichkeit mit 150 Liter Nutzinhalt. Für die jüngsten Feriengäste sind 2 Kinderhochstühle vorhanden. Wickeltisch.
Draußen
Die Ferienunterkunft liegt auf einem 5000 m² großen Naturgrundstück. Die Entfernung zum Fjord beträgt 3000 m. Die nächste Einkaufsmöglichkeit liegt 3000 m entfernt. In einem Abstand von 15000 m gibt es einen Golfplatz. Es steht ein 75 m² Terrassenareal zur Verfügung. Schaukel. Sandkasten. Trampolin.Lagerfeuerstelle. Parkplatz auf dem Grundstück.
Hobbyraum
Hobbyraum mit: Pooltisch. Tischtennis. Dart. Airhockey. Tischfußball.
Schlafverhältnisse
Die Schlafplätze verteilen sich auf 5 Schlafräume. 2 Schlafplätze in einem Doppelbett. 10 Schlafplätze in Einzelbetten. 2 Schlafplätze in einem Etagenbett. Ferner stehen 2 Kinderbetten zur Verfügung.
Küche
Die Küche ist mit amerikanischem Kühlschrank ausgestattet. Extra Kühlschrank vorhanden.. Außerdem gibt es 4 Keramik-Kochfelder, Umluftofen, Mikrowelle sowie Geschirrspüler.
WC und Bad
Es gibt 2 Badezimmer mit Duschnische und 2 Toiletten.
Whirlpool
Entspannen Sie sich im Innen-Durchlauf-Whirlpool für 2 Personen. Im Hot Tub für 6 Personen können Sie den Aufenthalt im Freien genießen.
Multimedien
In der Ferienunterkunft gibt es einen Fernseher. Radio. Stereoanlage.Playstation 3. Mindestens 4 dänische Fernsehsender. 1-3 schwedische Fernsehsender. 1-3 norwegische Fernsehsender. Mindestens 4 deutsche Fernsehsender. Es steht kabellose Internetverbindung zur Verfügung.
Wissenswertes
Rauchen ist nicht zugelassen. Bei Nichtbeachtung dieses Verbots wird eine Gebühr von mindestens EUR 420,- erhoben.
Unsere Gästebewertungen Externe Bewertungen
Ausstattung
-
Bitte beachten
-
Aktivitätshaus
-
Rauchen ist verboten
-
-
Draußen
-
Einlass3 km
-
Feuerstelle
-
Geschäft3 km
-
Golfplatz15 km
-
Größe des Grundstücks5000 m²
-
Naturstandort
-
Parkplatz beim Haus
-
Sandkasten
-
Schwingen
-
Terrasse75 m²
-
Trampolin
-
-
Einrichtung
-
2 Ebenen
-
Anzahl Erwachsene inkl. 4-11 Jahre14
-
Anzahl Kinder (0-3 Jahre)2
-
Baujahr1900
-
Bebaute Fläche300 m²
-
Ehemaliger Bauernhof
-
Fußbodenheizung
-
Gefrierkapazität (Anzahl Liter)150
-
Haustiere2
-
Hochstuhl2
-
Renovierung2018
-
Waschmaschine1
-
Wickeltisch
-
Wärmepumpe
-
Wäschetrockner1
-
-
Gratis Badeland
-
Schwimmzentrum Thy Hallens
-
Sydthy Schwimmbad
-
-
Hobbyraum
-
Airhockey
-
Billardtisch
-
Dart
-
Sportraum
-
Tischfussball
-
Tischtennis
-
-
Küche
-
Amerikanischer Kühlschrank1
-
Anzahl der Keramikkochplatten4
-
Heißluftofen1
-
Kühlschrank1
-
Mikrowelle1
-
Spülmaschine1
-
-
Multimedien
-
> 3 deutsche Sender
-
> 3 dänische Sender
-
0-3 norwegische Kanäle
-
0-3 schwedische Kanäle
-
Anzahl der Fernseher1
-
Herunterladen150
-
Hochladen150
-
Internet drahtlos
-
Playstation 3
-
Radio
-
Stereoanlage
-
-
Schlafverhältnisse
-
Anzahl der Schlafzimmer5
-
Doppelbett (Anzahl der Schlafplätze)2
-
Einzelbett (Anzahl der Schlafplätze)10
-
Etagenbett (Anzahl der Schlafplätze)2
-
Kinderbett2
-
-
WC und Bad
-
Anzahl der Badezimmer2
-
Duschkabine
-
Toiletten2
-
-
Whirlpool
-
Innen-Whirlpool (Anzahl Personen)2
-
Whirlpool6
-
-
Zugang zur Ferienunterkunft
-
Schlüsselkasten mit Code
-
Kurzurlaub
Es besteht eine begrenzte Möglichkeit das ganze Jahr einen Kurzurlaub zu machen, typischerweise ausserhalb der Hochsaison.
Preise und Kalender
Kalender
Dauer
Preis
Zeitraum
- Ankunft
- Abreise
- Dauer
- 1 Woche
Personen
Bis zu 14 Personen
Bitte beachten
Ankunftszeit wurde nicht ausgewählt.
